EasyManua.ls Logo

Agria 3100 - Electric Circuit

Agria 3100
44 pages
Print Icon
To Next Page IconTo Next Page
To Next Page IconTo Next Page
To Previous Page IconTo Previous Page
To Previous Page IconTo Previous Page
Loading...
Edition 03.95 Single-wheel power hoe 3100 41
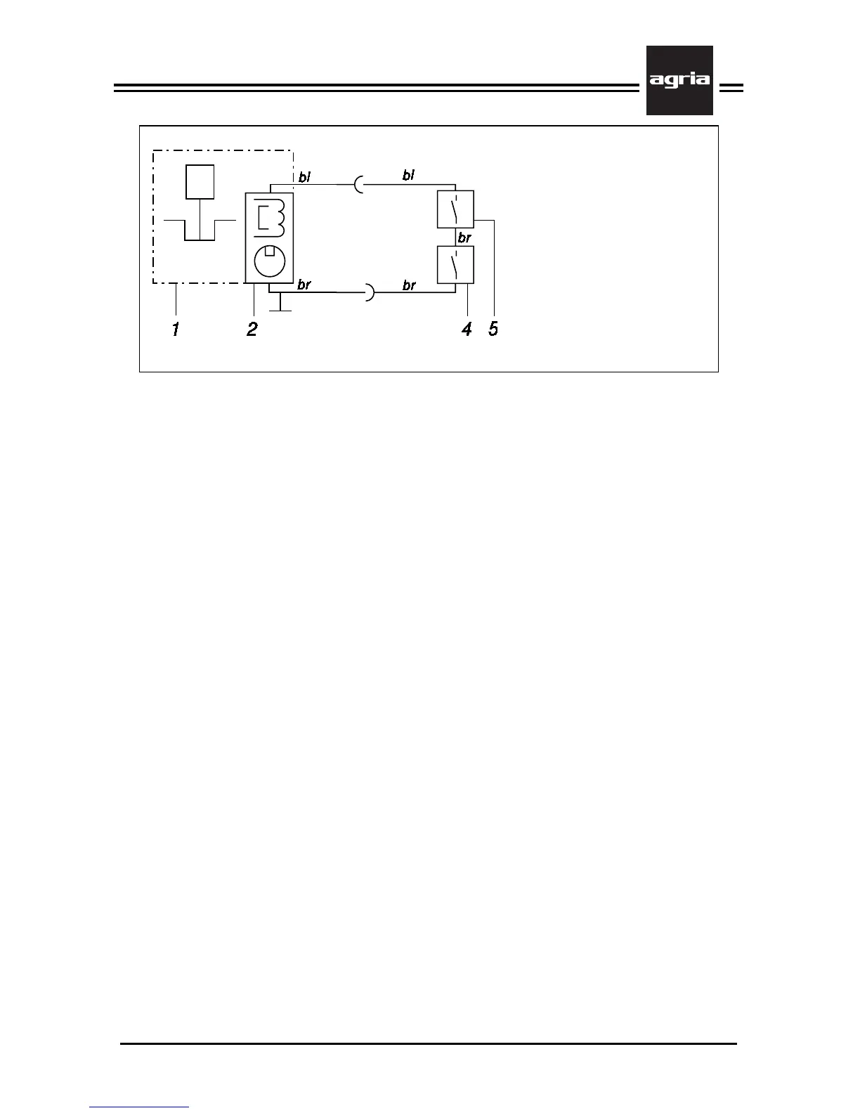
Electric Circuit
Edition 03.95 Single-wheel power hoe 3100 41
1 Engine
2 Magnet ignition
system
4 Switch in safety
lever
5 Switch in clutch
lever
bl = blue
br = brown

Related product manuals