EasyManua.ls Logo

Alcatel IPUP A100 - Page 107

Alcatel IPUP A100
115 pages
Print Icon
To Next Page IconTo Next Page
To Next Page IconTo Next Page
To Previous Page IconTo Previous Page
To Previous Page IconTo Previous Page
Loading...
G 10
Alcatel Vacuum Technology France --- IPUP A100 Instruction manual
1 / 2
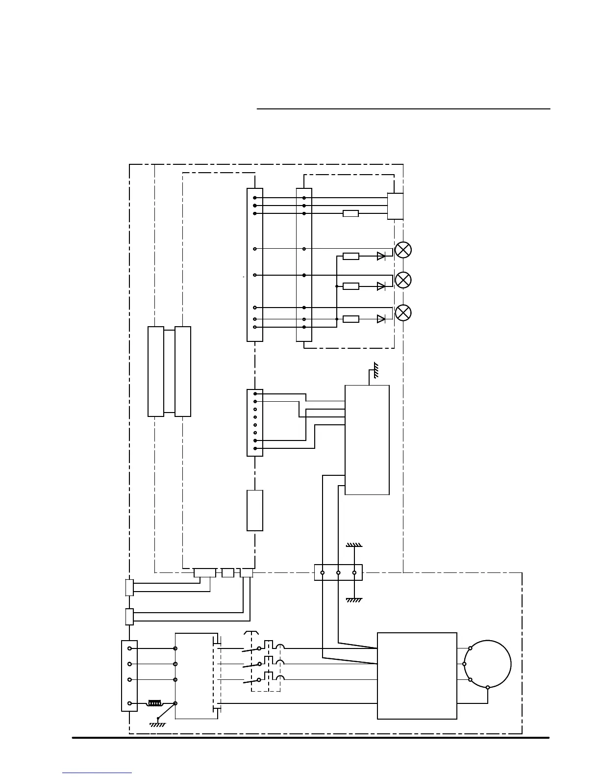
IPUP A100 electrical block
diagram
T1 T2 T3
L1
L2 L3
208VAC
1
6
5
4
3
2
ON
WARNING
24V
V+
V--
GROUND
FAULT
RS 232
OPTIONS
KEYBOARD
REMOTE
1
2
3
RED
BLUE
3
8
2
1
4
5
6
7
8
ORANGE
BROWN
3
8
2
1
7
4
5
6
7
4
5
6
1 2 3
4
1 2 3T
PUMPBOX
CONVERTER
SWITCHING POWER SUPPLY
D7 D6
J4
KEYBOARD
D5
RT1
FILTER
J2
J7
J3
J1
J/P6 POWERS
J20
P0235--E1
J9
J8
POWER SUPPLY
180/265V 50/60Hz
RS 232
J22
J21
S.P.I.
J23
J5
J10
ELECTRICAL BOX
MOT.
AL1
SENSORS, VALVESAND CONVERTER
G
B
0
0
5
6
2

Table of Contents

Related product manuals