EasyManua.ls Logo

Alcatel IPUP A100 - Page 19

Alcatel IPUP A100
115 pages
Print Icon
To Next Page IconTo Next Page
To Next Page IconTo Next Page
To Previous Page IconTo Previous Page
To Previous Page IconTo Previous Page
Loading...
A 40
4 / 9
Alcatel Vacuum Technology France --- IPUP A100 Instruction manual
IPUP A100 technical characteristics
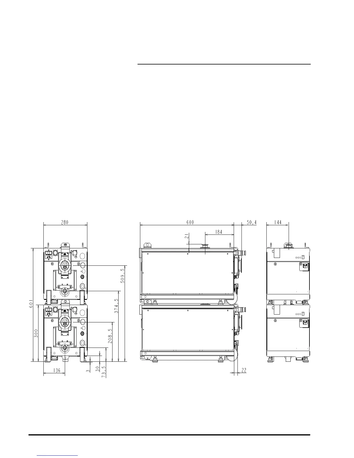
IPUP A100 STACKING DIMENSIONS AND INTERFACING (1/2)
Left viewFront viewRight view
G
B
0
0
5
1
8

Table of Contents

Related product manuals