EasyManua.ls Logo

Allen-Bradley PLC-2/30 - Page 197

Allen-Bradley PLC-2/30
348 pages
Print Icon
To Next Page IconTo Next Page
To Next Page IconTo Next Page
To Previous Page IconTo Previous Page
To Previous Page IconTo Previous Page
Loading...
Block Transfer
Chapter 10
1013
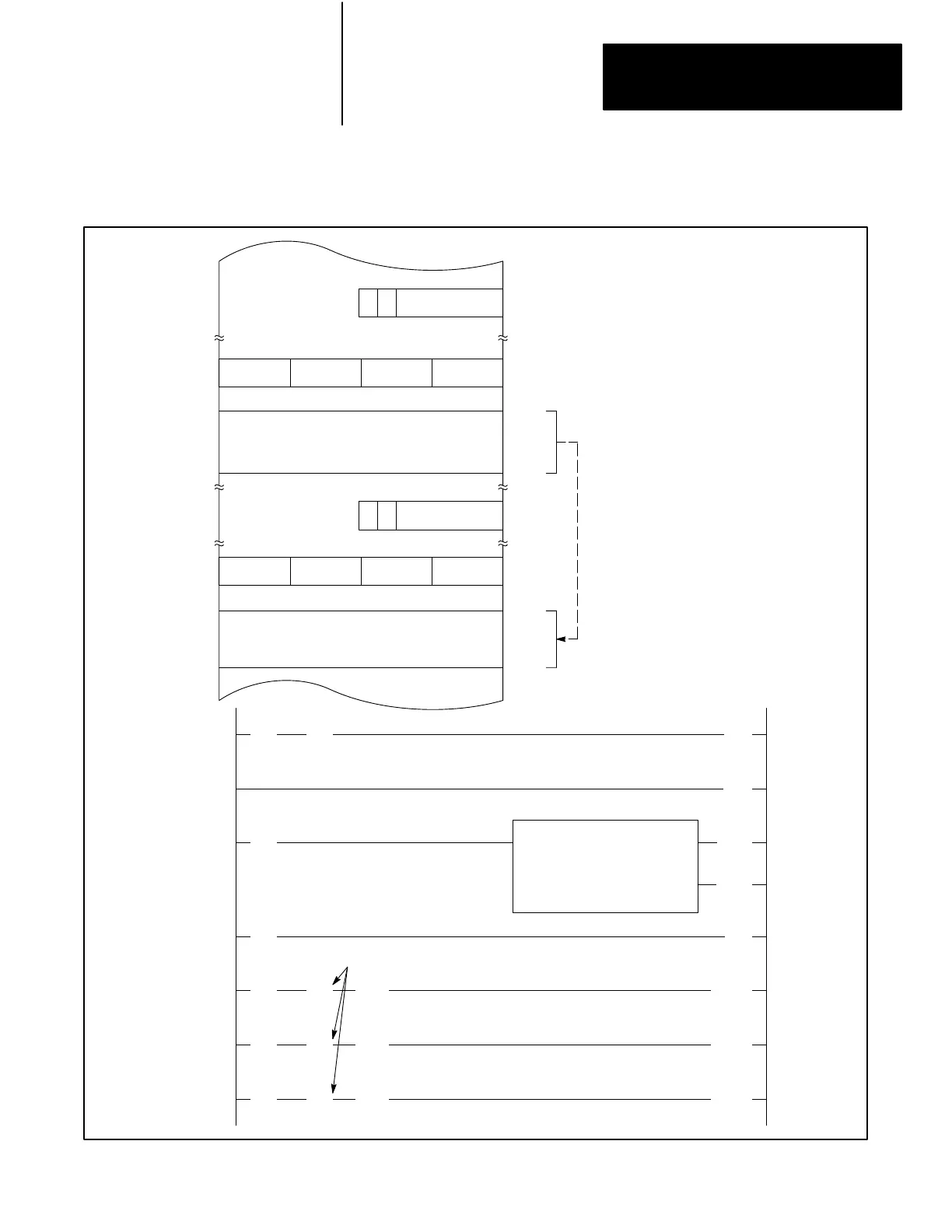
Figure 10.7
Buffering
Data
014
1
4
0
030
050
130
Block
Length
Code
R
10
114
R
10
150
152
050
052
 Block T
ransfer Data (Buf
fer)
 Block T
ransfer Data (V
alid) 
Data in the buffer file
050052 will be moved
to 150152 when:
A.
Done Bit 1
14/07 is set
(valid transfer)
B.Diagnostic Bit is TRUE
for each word to be
moved in rungs 57
(valid data)
||
00
()
02
010 010
( U )
00
010
||
11
( EN )
07
111 014
BLOCK TRANSFER READ
DAT
A ADDR
030
MODULE ADDR
140
BLOCK LENGTH
03
FILE 050052
||
07
( L )
00
014 010
( DN )
07
014
||
02
( PUT )
111
010 150
| G |
111
050
||
02
( PUT )
222
010 151
| G |
222
051
||
02
( PUT )
333
010 152
| G |
333
052
||
07
114
||
||
||
Rung 1
Rung 2
Rung 3
Rung 4
Rung 5
Rung 6
Rung 7
Diagnostic Bit
Artisan Technology Group - Quality Instrumentation ... Guaranteed | (888) 88-SOURCE | www.artisantg.com

Table of Contents

Related product manuals