EasyManua.ls Logo

Asko HIHD854MF - Page 61

Asko HIHD854MF
72 pages
Print Icon
To Next Page IconTo Next Page
To Next Page IconTo Next Page
To Previous Page IconTo Previous Page
To Previous Page IconTo Previous Page
Loading...
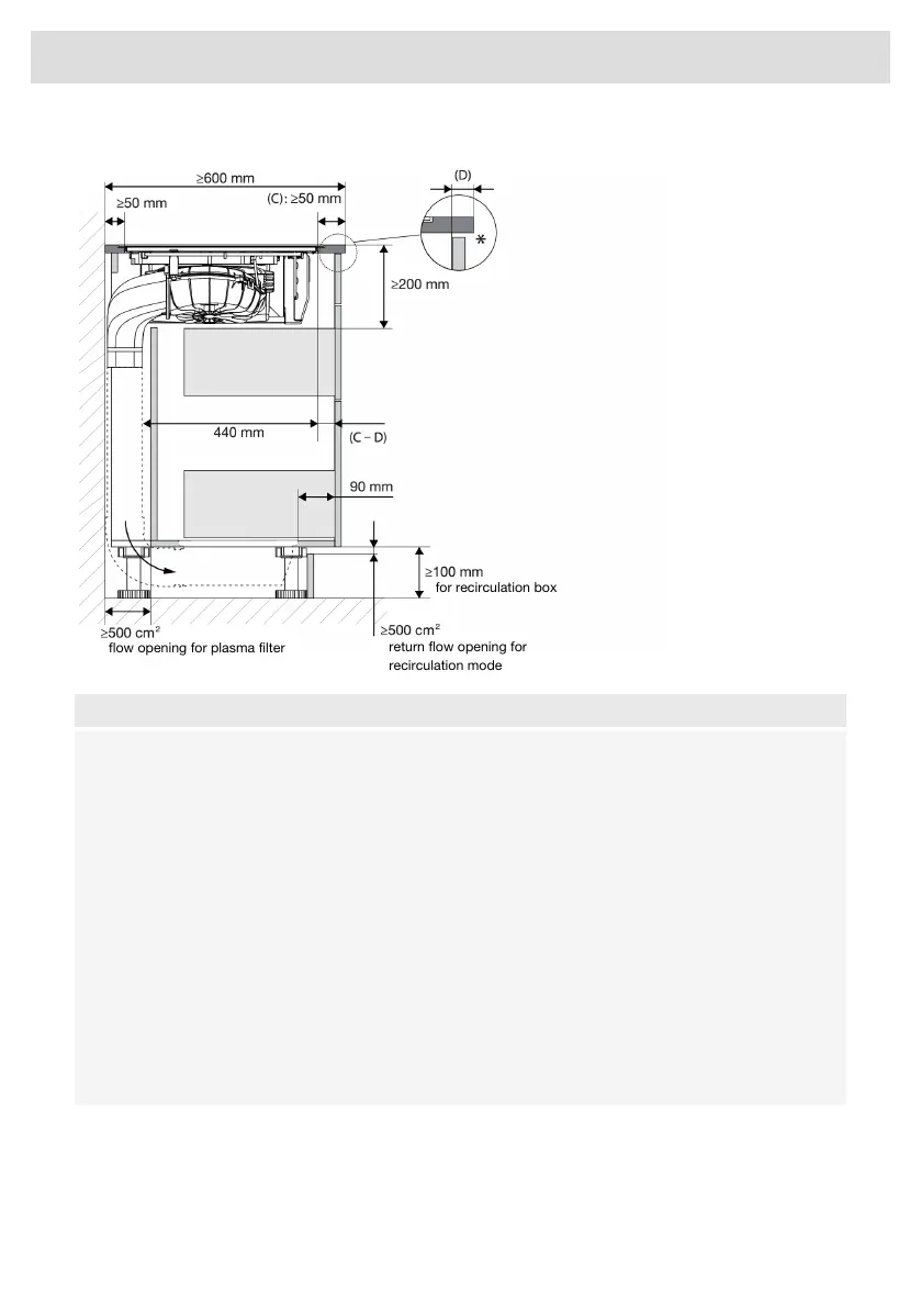
Kitchen cabinet dimensions
return flow opening for
recirculation mode
for recirculation box
flow opening for plasma filter
NOTE!
* For optimal hob performance, a ventilation gap of 6 mm is advised.
Minimum cabinet width: 800 mm.
For installation and service, the back panel must be dismountable.
With recirculation, the humidity can rise. Therefore, a return opening of at least 500 cm
2
must
be provided and the cut surfaces must be made moisture resistant.
With recirculation, please note that condensation may occur if the kitchen unit is installed
against an uninsulated wall or floor. If necessary, choose an alternative recirculation set that
is mounted in the plinth.
The power cord connection is located at the front of the appliance. At least 900 mm length
of the power cord is required to lead it to the socket designated location behind the appliance.
Check the appliance for transport damage. Do not connect a damaged appliance.
The walls and the worktop surrounding the appliance must be heat resistant up to at least
105 °C.
The worktop into which the hob is fitted should be flat.
Electrical connection
This appliance must be earthed.
The electrical connection must comply with national and local regulations.
Prior to installation, ensure that the local distribution conditions (voltage and frequency) and the
adjustment of the appliance are compatible.
61
Installation

Related product manuals