EasyManua.ls Logo

Baumuller BUS 6 VC - 7.3 Overload Monitoring of Power Unit

Baumuller BUS 6 VC
110 pages
Print Icon
To Next Page IconTo Next Page
To Next Page IconTo Next Page
To Previous Page IconTo Previous Page
To Previous Page IconTo Previous Page
Loading...
Parameter
V-Controller (BUS 6 VC) 37
Baumüller Nürnberg Electronic GmbH & Co. KG 5.03047.01
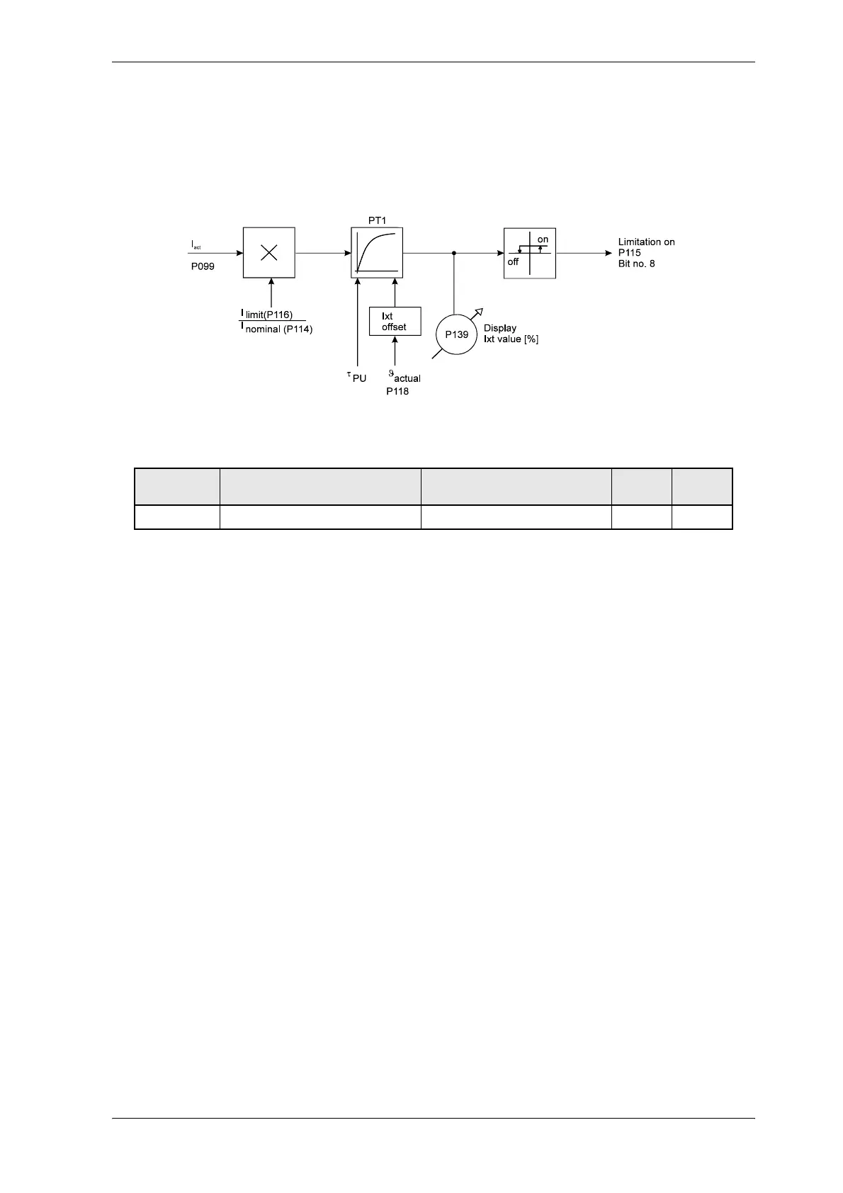
7.3 Overload Monitoring of Power Unit
This monitoring protects the power unit from thermic overload. The temperature of the power unit is im-
itated and monitored by a Ixt model.
Parameter overview
Parameter description
P139 PU Ixt value
This parameter displays the actual Ixt value of the overload monitoring. At a value equal
100 % follows a current limitation to nominal current (P114). Drops the Ixt value below 95%
the current value is set to PU I limit (P116).
Current set value (I
act
) [A
eff
] P099
PU nominal current (I
nom
) [A
eff
]P114
PU maximum current (I
max
) [A
eff
]P113
PU limit current (I
limit
) [A
eff
]P116
PU overload time (t
O
) [s] P119
PU temperature (ϑact) [°C] P118
PU Ixt value (Ixt) [%] P139
PU overload factor max (u
max
) [%]
PU overload factor actual (u) [%]
PU thermic time constant (τ
PU
) [s]
PU reaction time (t
rea
) [s] time till the limitation of I
nom
PU Ixt offset (Ixt offset) [%]
[%]
[%]
[s]
Parameter Name Range
min. ... max.
Unit Display
only
P139 PU Ixt value 0,00 ... 400,00 %
!
u
max
I
max
I
nom
----------
100=
u
I
act
I
nom
----------
100=
τ
PU
t
o
u
max
100
u
max
--------------------------- -


ln
---------------------------------------=

Related product manuals