EasyManua.ls Logo

BendPak GP-7 - Page 35

BendPak GP-7
68 pages
Print Icon
To Next Page IconTo Next Page
To Next Page IconTo Next Page
To Previous Page IconTo Previous Page
To Previous Page IconTo Previous Page
Loading...
GrandPrix (GP-7 Series) Two-Post Lifts 35 P/N 5900209August 2018 — Rev. C2
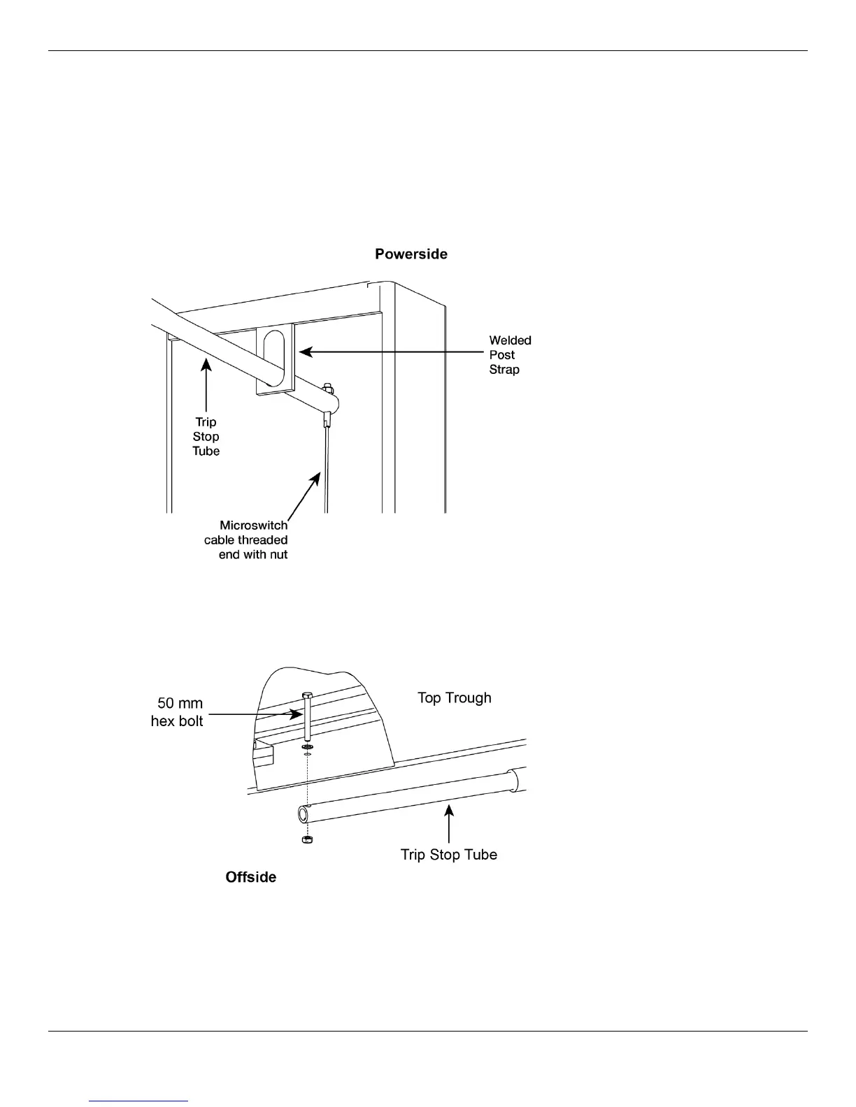
Installing the Trip Stop Tube
The Trip Stop Tube is installed on the underside of the Top Trough.
The Trip-Stop Tube stops upward movement of the lift; if you are raising a vehicle and it hits the Trip-
Stop Tube, the lift immediately stops moving up.
To install the Trip Stop Tube:
1. On the Powerside, slide the Trip Stop Tube through the welded Post Strap, then fasten the
threaded end of the Microswitch Cable through the hole in the tube.
2. Route the loop end of the Microswitch Cable down the inside of the Powerside Post.
3. On the Offside, secure the other end of the Trip Stop Tube to the underside of the Top Trough
using a 50 mm hex bolt, washer, and nut.
The bolt must be inserted from
inside
the Top Trough.

Other manuals for BendPak GP-7

Related product manuals