EasyManua.ls Logo

BendPak HD-973P - Page 20

BendPak HD-973P
112 pages
Print Icon
To Next Page IconTo Next Page
To Next Page IconTo Next Page
To Previous Page IconTo Previous Page
To Previous Page IconTo Previous Page
Loading...
HD-973P Series Multi-Level Parking Lift 20 P/N 5900076Rev. B3 — January 2024
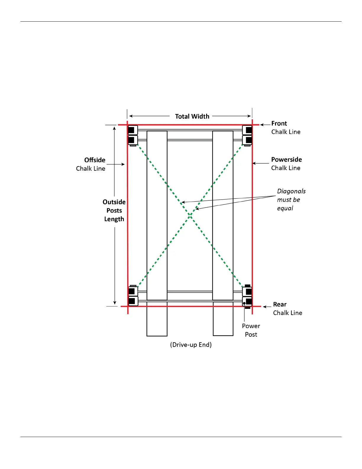
Creating Chalk Line Guides
Use Chalk Line Guides to ensure that the Posts are installed correctly.
Create the Chalk Line Guides so that the outside edges of all four Posts fit into the four corners
created by the Chalk Line Guides.
See Specifications to determine the Total Width and Outside Posts Length for your Lift.
Note: Do not use the Total Length value; this includes the Ramps, which are not taken into
consideration for creating Chalk Line Guides.
Top view. Not drawn to scale. Not all components shown.

Related product manuals