EasyManua.ls Logo

BendPak HD-973P - Page 65

BendPak HD-973P
112 pages
Print Icon
To Next Page IconTo Next Page
To Next Page IconTo Next Page
To Previous Page IconTo Previous Page
To Previous Page IconTo Previous Page
Loading...
HD-973P Series Multi-Level Parking Lift 65 P/N 5900076Rev. B3 — January 2024
Final Leveling
The following procedure describes how to fine tune how level your Lift is. The goal is that the four
Safety Locks on each Platform engage at the same time.
To do final leveling on the Lift:
Make sure the Platform Selector Valve is turned on for the Upper Platform.
Raise the Upper Platform to the first Lock position (the primary Safety Locks, not the Slack Safety
Locks).
Use a transit level or other leveling mechanism to evaluate how level the Posts and Runways are to
each other.
If you need to adjust a Runway, use the Top Nut and Stop Nut on the Top Cap of each Post to
adjust the Ladder in that Post (which impacts the levelness of the Runway and when the Safety
Locks engage).
Raise the Platform to about mid height, listening as the Safety Locks engage.
If the Safety Locks are engaging at the same time, no further adjustments are necessary.
If the Safety Locks are not engaging at the same time, check the leveling, make necessary
adjustments, and then raise the Lift again and listen as the Safety Locks engage.
Leave the Upper Platform engaged on a Safety Lock, then switch the Platform Selector Valve on
for the Lower Platform.
Repeat Steps 1 through 5 for the Lower Platform.
When you are satisfied the Lift is level, firmly secure the Nuts at the top of each Post.
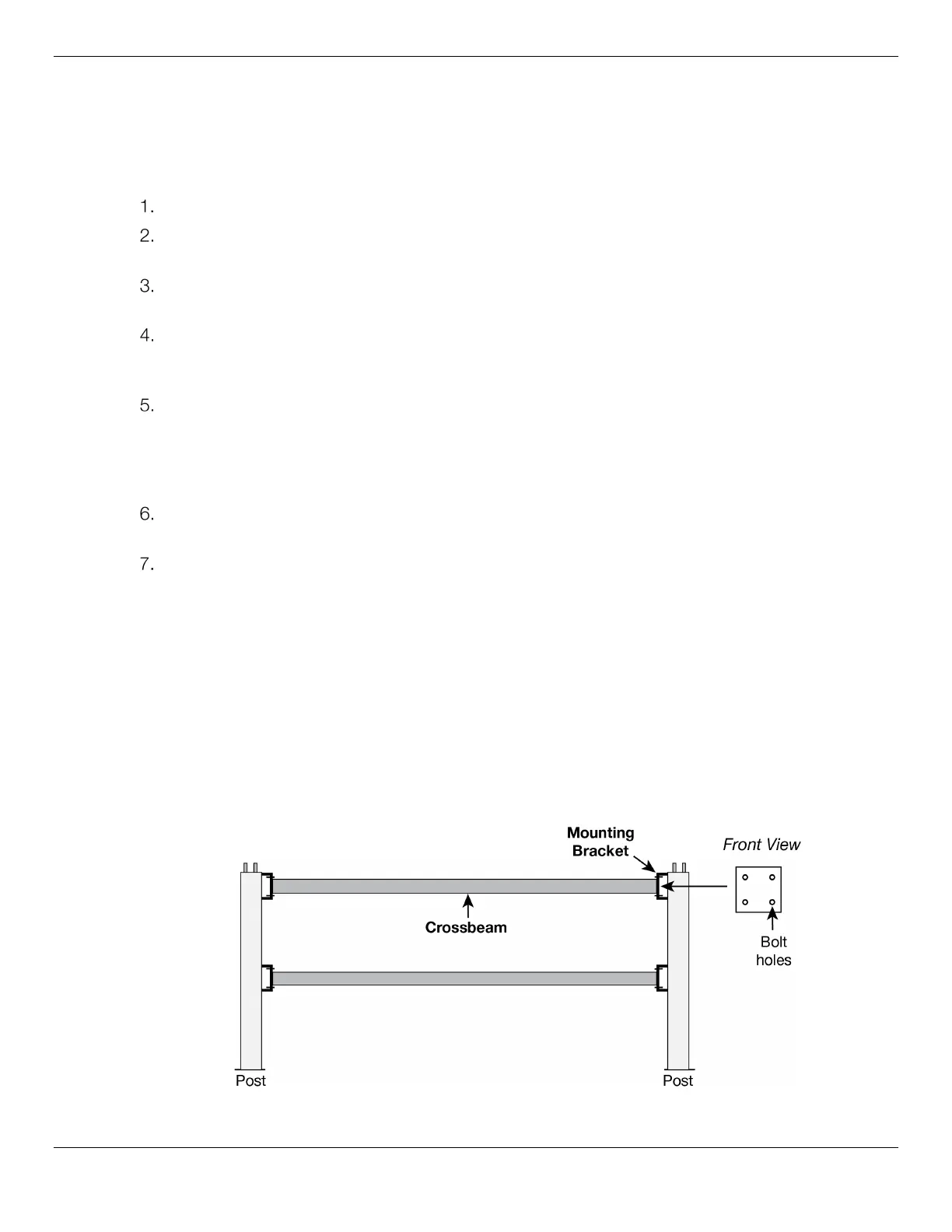
Installing the Crossbeams
To prevent from interfering with some of the other procedures in your Lift setup, installing the
Crossbeams is one of the last steps to complete before you begin operating your Lift; that procedure
is described here.
Your Lift comes with four Crossbeams: two Crossbeams connect the Offside Posts and the other two
connect the Powerside Posts. The Crossbeams increase the structural stability to your Lift.
The figure below details the orientation of the Crossbeams.
Side view. Runways not shown. Not drawn to scale. Not all components shown.

Related product manuals