EasyManua.ls Logo

BendPak PL-12000DP - Specifications and Dimensions

Default Icon
96 pages
Print Icon
To Next Page IconTo Next Page
To Next Page IconTo Next Page
To Previous Page IconTo Previous Page
To Previous Page IconTo Previous Page
Loading...
PL-12000DP Series Parking Lift 9 P/N 5900285Rev. A1 — February 2023
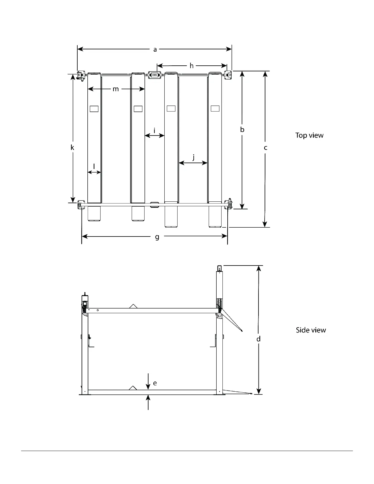
Specifications

Related product manuals