EasyManua.ls Logo

BFT Espas 20I - 9 Montage, Positionierung der Holme; 10 Positionierung der Schleifen

BFT Espas 20I
Print Icon
To Next Page IconTo Next Page
To Next Page IconTo Next Page
To Previous Page IconTo Previous Page
To Previous Page IconTo Previous Page
Loading...
87 - Espas 20I
D812913 10598_02
DEUTSCH
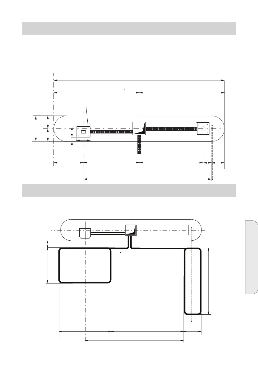
Richten Sie die Ein- oder Ausfahrt so ein, dass die Fahrzeuge an die Säule heranfahren können.
Vermeiden Sie soweit möglich enge Kurven unmittelbar vor oder nach der Säule. Halten Sie
die Fahrbahn möglichst eben und vermeiden Sie vor allem Steigungen.
Achtung: Konsultieren Sie für weitergehende Informationen die Installationspläne.
9 - MONTAGE, POSITIONIERUNG DER HOLME
10 - POSITIONIERUNG DER SCHLEIFEN
Wir empfehlen, die Schleifen wie folgt zu installieren:
175
50
150
280
100
20
200
10
130
150
20
30 30
30
70
24,5
31
400
300
200
200
espas20 I
60
Espas 20I

Table of Contents