EasyManua.ls Logo

BioLogic BIODOM 27A - Dimensions of BIODOM Boiler 27 a; Purpose of the Instructions for Use; Updates

BioLogic BIODOM 27A
52 pages
Print Icon
To Next Page IconTo Next Page
To Next Page IconTo Next Page
To Previous Page IconTo Previous Page
To Previous Page IconTo Previous Page
Loading...
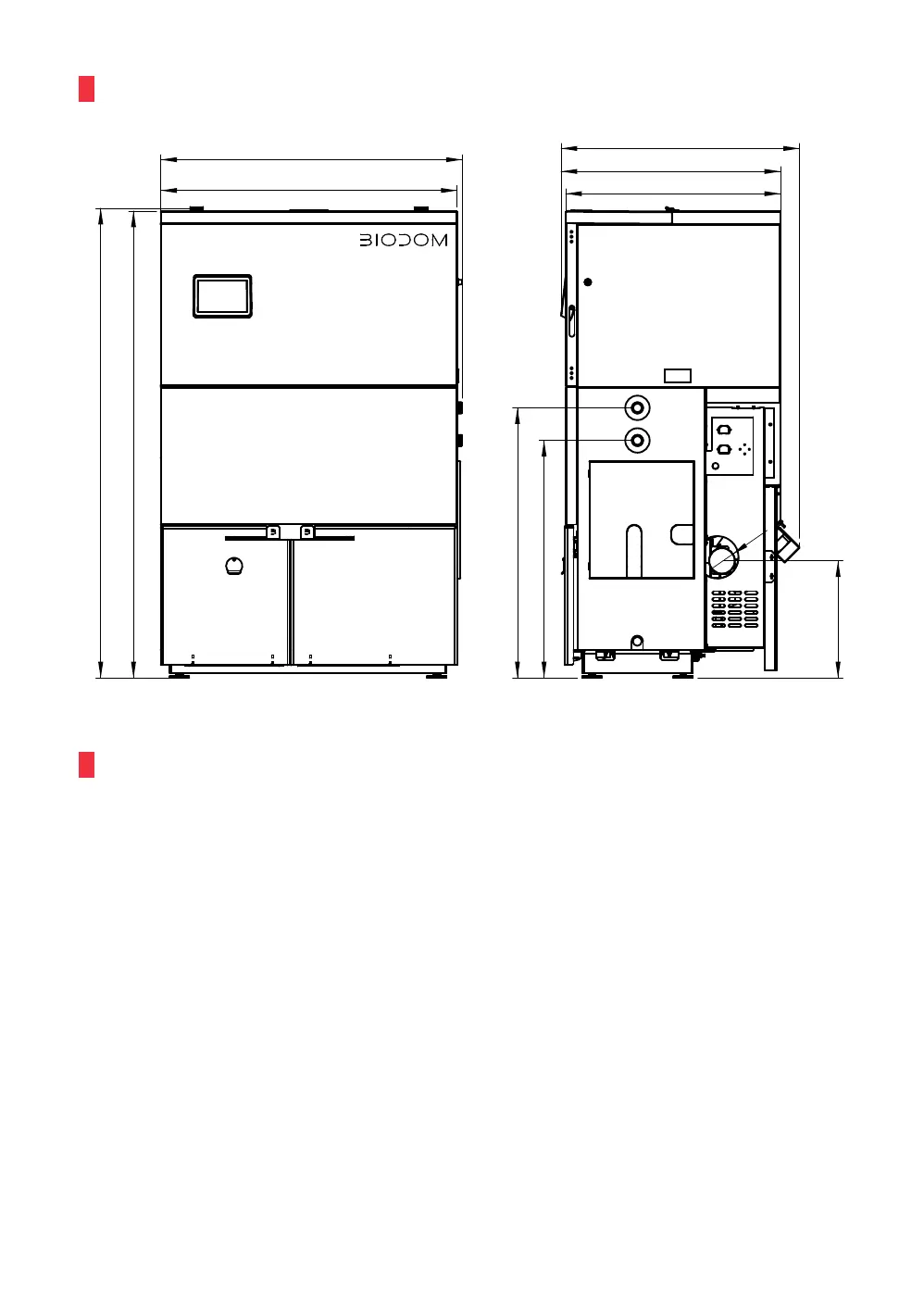
2. DIMENSIONS OF BIODOM BOILER 27 A
910
926
1434
1442
723
660
674
729
829
360
80
3. PURPOSE OF THE INSTRUCTIONS FOR USE
The purpose of the instructions for use is to acquaint the user with all the necessary measures
and equipment necessary to ensure the safe and correct use of the combustion device.
3.1. UPDATES
These instructions reect the state of the art of the product at the time the boiler was manu-
factured.
The instructions do not apply to products that are already on the market with the appropriate
technical documentation and cannot be considered defective or insucient after any change,
adaptation or application of new technologies on newer products.
You should read and follow the contents of this booklet carefully. All the information contained
in this booklet is necessary for the proper installation, use and maintenance of your boiler.
Instructions should be stored carefully and safely. Instructions for use, maintenance and instal-
lation are an integral part of the pellet boiler unit.
If ownership of the unit is transferred to another person, these operating instructions must be
handed over together with the boiler.
www.biodom27.si
BIODOM 27A 11