EasyManua.ls Logo

Burkert 3280 - Device Versions; Electric Control

Burkert 3280
50 pages
Print Icon
To Next Page IconTo Next Page
To Next Page IconTo Next Page
To Previous Page IconTo Previous Page
To Previous Page IconTo Previous Page
Loading...
11
Product description
Type 3280, 3285
5.4 Device versions
Type Descriptions Seat diameter Version
3280 Electromotive 2-way seat
valve
1, 1.5, 2, 3, 4, 5, 6,
8, 10
Standard: On-Off
Control valve
3285 Electromotive 2-way disc
valve
8, 10, 12, 15, 20, 25 Positioner: Analog
Digital (Fieldbus)
Process controller: Analog
Digital (Fieldbus)
There are 2 versions of the positioner and the process controller:
- Analog: Set-point values are transmitted in analog mode via the standard signals,
- Digital: Set-point values are transmitted in digital mode via CANopen/büS.
The versions can be identified on the connector diagram. For this, see chapter “7.2”.
5.4.1 Electric control
The motor valves 3280 and 3285 feature an electromotive actuator with an electric control.
The device version is stated on the type label: G means on-off, 0 resp. H means control valve, C means
positioner and D stands for process controller.
Standard device:
On-Off: By processing the external set-point values the valve is switching.
Control valve: The device converts a external standard signal, set-point position to a valve position.
Both valve end positions are indicated by the LED status. Additionally, the digital output indicates when the closed
valve position has been achieved.
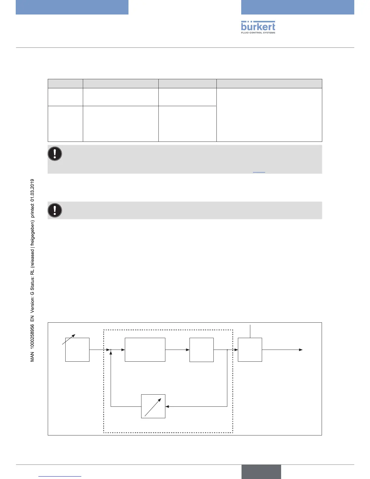
Positioner:
The position controller version converts a set-point position to a valve position. The position of the actuator is con-
trolled according to the position set-point value. The current position (POS) of the electromotive valve is recorded
by the position measuring system. The position controller compares this position actual value to the set-point value
(CMD) specified as the standard signal. In case of a control difference (Xd1), the motor control signal is sent to the
actuating drive as the actuating variable. Z1 is a disturbance value.
Position controller
Position control circuit
CMD CTRL POS
Z1
POS
Valve opening
+
Xd1
-
Position measuring
system
Continuous valve
Electromotive
actuator
Position
set-point
value
Figure 3: Signal flow diagram position controller
english

Table of Contents

Related product manuals