EasyManua.ls Logo

Calorex Pro-Pac PPT45EHC - Page 73

Calorex Pro-Pac PPT45EHC
104 pages
Print Icon
To Next Page IconTo Next Page
To Next Page IconTo Next Page
To Previous Page IconTo Previous Page
To Previous Page IconTo Previous Page
Loading...
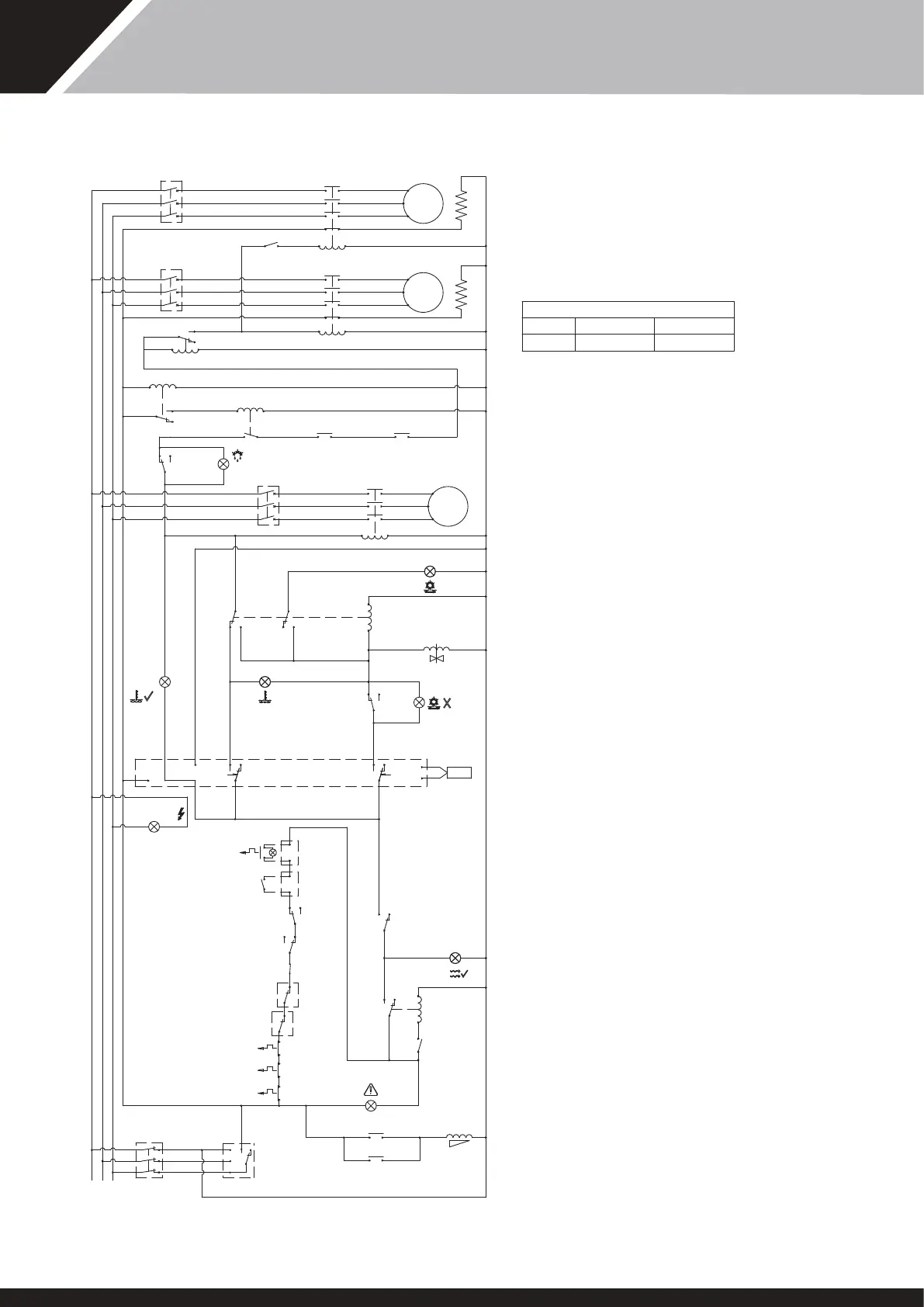
CIRCUIT
2.5A
VENTILATEUR
4.5A
VALEURS DISJONCTEUR
COMPRESSEUR
32.8A
MCB CONTACTS / MCB ALARM CONTACTS / MCB AUX CONTACTS
SHOWN WITH CIRCUIT BREAKER MANUALLY SWITCHED TO THE ON
CONDITION
WATER FLOW SWITCH CONTACTS SHOWN WITH WATER FLOW AT
MAXIMUM RATE
ALL OTHER CONTACTS SHOWN IN DE-ENERGISED STATE BUT WITH
REFRIGERATION CIRCUIT FULLY CHARGED
WHERE CONTACTS ARE MARKED (N/O) OR (N/C) ON CIRCUIT DIAGRAM
ABOVE CONDITIONS APPLY
VOYANT
ALIMENTATION
PRINCIPALE
DISJONCTEUR
COMMANDE
MONITEUR
DE PHASES
CONTACTEUR
(COMP 2)
VENTILATEUR
COMP
2
RECHAUFFEUR
COMPRESSEUR
PRESSOSTAT HP
VOYANT
REFROIDISSEMENT
SOUPAPE
D'INVERSION
DISJONCTEUR
COMP 2
DISJONCTEUR
(COMP 1)
DEMARRAGE AMORTI
DISJONCTEUR THERMIQUE
ET VOYANT DEFAUT
SI INSTALLE
BORNES D'INTER-
VERROUILLAGE
CHAUFFAGE
VOYANT
DEMARREUR OU
CONTACTEUR DE DEBIT
PRESSOSTAT BP
PROTECTION ELECTRONIQUE
COMPRESSEUR 1
VOYANT DEFAUT
VEILLE
COMMUTATEUR
VOYANT
TEMP OK
PRESSOSTAT ET VOYANT
LIMITE DE
REFROIDISSEMENT
COMMUTATEUR
DEBIT D'EAU
COMP
1
PROTECTION ELECTRONIQUE
COMPRESSEUR 2
ELECTROVANNE
(ARRET LIGNE
LIQUIDE)
VOYANT
DEBIT D'EAU
DISJONCTEUR COMP 2
AUX
RECHAUFFEUR
COMPRESSEUR
CONTACT 7 ET 8 FERMES EN MODE FROID
THERMOSTAT 2 CANAUX
CONTACT 6 ET 4 FERMES EN MODE CHAUD
3 N/F (VEILLE)(O)
2 N/O (MARCHE)(I)
(COM) C
(N/F) L
H (N/O)
THERMOSTAT
DEGIVRAGE
(10 SECS)
6 (N/F)
4 (N/F)
2 (N/F)
12 (N/F)
DISJONCTEUR
(VENTILATEUR)
(N/O)
A
B
RELAIS (R3)
(COM) 1
4 (N/O)
2 (N/O)
TEMPORISATION T3
22 (N/F)
A1 A2
(V)
(U)1 2 (N/F)
(N/O)
4 (N/O)
1 (N/F)
(COM) 7
RELAIS (R2)
16 (N/F)
TEMPORISATION T1
(12 HEURES)
A
B
RELAIS (R1)
CONTACTEUR
(VENTILATEUR)
(N/F) 1
7 (COM)
(N/O) 4
(N/F) 3
9 (COM)
(N/O) 6
VOYANT
DEGIVRAGE
5
3
1
6 (N/O)
4 (N/O)
2 (N/O)
21 22 (N/F)
CONTACTEUR
(COMP 1)
(W)
(V)
(U)
1
6 (N/F)
18 (N/O)
(COM) 15
A2A1
TEMPORISATION T2
(6 MINS)
54
53 (N/O)
COMP 2 MCB AUX
16 (N/F)
13 14 (N/O)
13 14 (N/O)
DISJONCTEUR COMP 1
AUX
(SE COUPE A H EN
BASSE TEMPERATURE
L3
L2
L1
14 (N/O)
11 (COM)
5
3
1
CONTACT ALARME
DISJONCTEUR VENTILATEUR
CONTACT ALARME DISJONCTEUR
COMPRESSEUR 1
CONTACT ALARME DISJONCTEUR
COMPRESSEUR 2
L3 L2 L1
5
3
1
6 (N/F)
4 (N/F)
2 (N/F)
5
3
1
6 (N/O)
4 (N/O)
2 (N/O)
5
3
1
6 (N/O)
(N/O) 11 14 (COM)
21
(W)
5
3
6 (N/F)
4 (N/F)
(COM) 15
18 (N/O)
A1 A2
A2A1
A1 A2
5
3
4 (N/F)
2 (N/F)
A1
A2
54 53 (N/O)
COMP 1 MCB AUX
(COM) 6
4 (N/O)
11
10
SONDE
5 (N/C)
(COM) 7
8 (N/O)
9 (N/F)
2 (N)
C (COM)
H (N/O)
(N/F) L
OUT 2
(SE COUPE A H EN BASSE
DE TEMPERATURE)
1 (L)
44
43 (N/F)
43
44 (N/F)
(N/F)
C (COM)
H (N/F)(N/O) L
C (COM)
H (N/O)
(N/F) L
(SE COUPE A L EN
HAUTE PRESSION)
(SE COUPE A H EN
BASSE PRESSION)
(N/F)
95
96 (N/F)
(NF)
TK
TK
PROTECTION THERMIQUE
VENTILATEUR
PP(T)70EHC, TRIPHASEE (200V ~3 60Hz)
21
SD566250 ISSUE 35

Related product manuals