EasyManua.ls Logo

Carrier 30RBP-170R - Page 58

Carrier 30RBP-170R
92 pages
To Next Page IconTo Next Page
To Next Page IconTo Next Page
To Previous Page IconTo Previous Page
To Previous Page IconTo Previous Page
Loading...
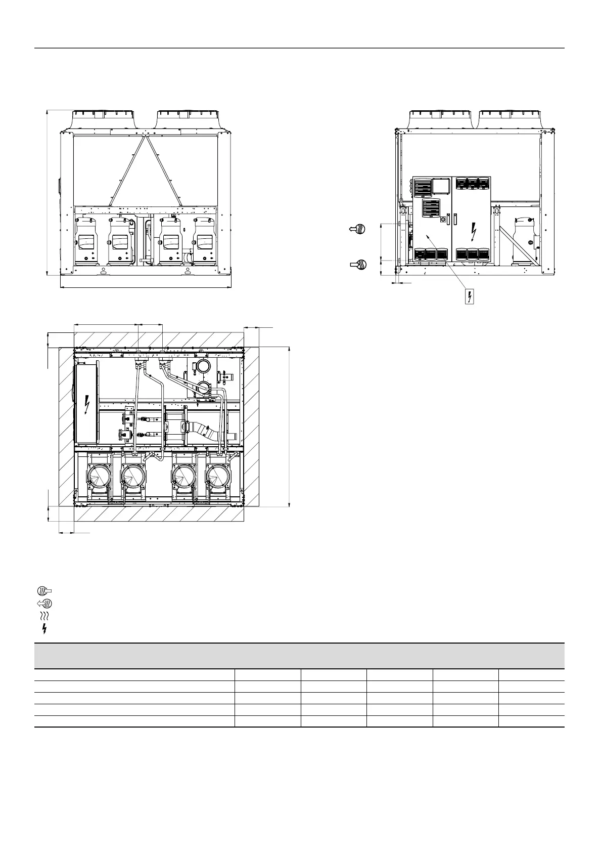
DIMENSIONS/CLEARANCES
30RB/P - 30RQ/P
2324 HT
519208
2410 HT
2’’ Victaulic
Electrical power
connection
42
Desuperheater Option 49
1500
2253 HT
2200
1500
A B
1500
C
B
B B
Key:
All dimensions are given in mm.
NOTE: Non-contractual drawings.
When designing a system, refer to the certied dimensional
drawings provided with the unit or available on request.
Refer to the certied dimensional drawings for the location
of xing points, weight distribution and coordinates of the
centre of gravity, hydraulic and electrical connections.
B
Clearances required for maintenance and air ow
C
Clearance recommended for coil removal
Water inlet
Water outlet
Air outlet, do not obstruct
Control box
Unit model
30RB/30RBP 170R to 270R 310R to 410R 450R to 550R 610R to 770R 800R to 950R
30RQ/30RQP 165 to 270R 310R to 400R 430R to 520R - -
Length 2410 3604 4797 5992 7185
Length A 926 1515 2751 1974 1971
Length B 339 509 339 1930 2148
12 - OPTIONS
58

Table of Contents

Related product manuals