EasyManua.ls Logo

CASE CONSTRUCTION CX130B - Idler Wheel Wear Limits

CASE CONSTRUCTION CX130B
61 pages
Print Icon
To Next Page IconTo Next Page
To Next Page IconTo Next Page
To Previous Page IconTo Previous Page
To Previous Page IconTo Previous Page
Loading...
Issued 06-15
1002-26
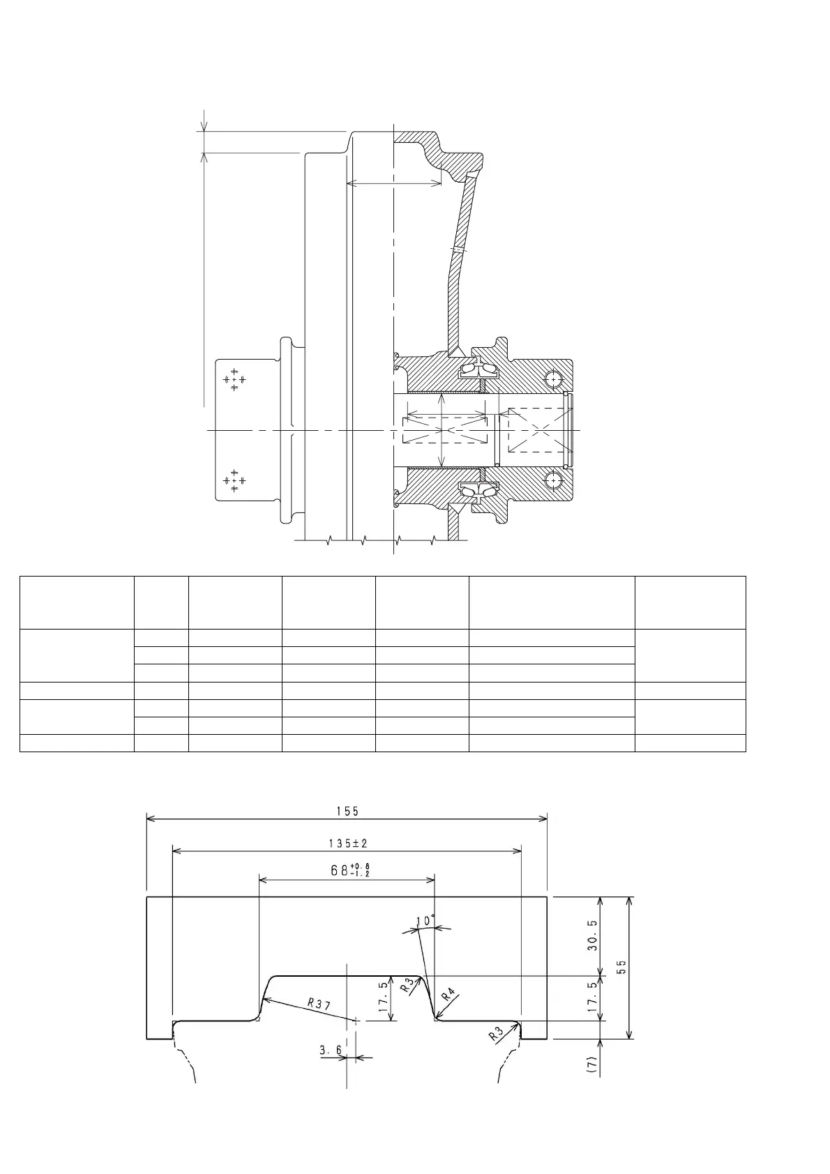
Idler wheel
Gauge
unit in mm
Part name Code
Measured
dimensions
(mm)
Standard
value (mm)
Usage limit
(mm)
Judgment Solution
Ilder wheel
b 17.5 - Acceptable/Unacceptable
Cladding by welding
or replacement
a Ø
Ø454 Ø450 Acceptable/Unacceptable
c 68 64 Acceptable/Unacceptable
Shaft d Ø Ø55 Ø54.5 Acceptable/Unacceptable Replacement
Bushing
d Ø Ø55 Ø55.8 Acceptable/Unacceptable
Replacement
e
54 53.6 Acceptable/Unacceptable
Hub f
23.4 23.9 Acceptable/Unacceptable Replacement
RI14001-002
e
c
d
ab
f

Related product manuals