EasyManua.ls Logo

Clark CER10 - Page 89

Clark CER10
92 pages
Print Icon
To Next Page IconTo Next Page
To Next Page IconTo Next Page
To Previous Page IconTo Previous Page
To Previous Page IconTo Previous Page
Loading...
4 1
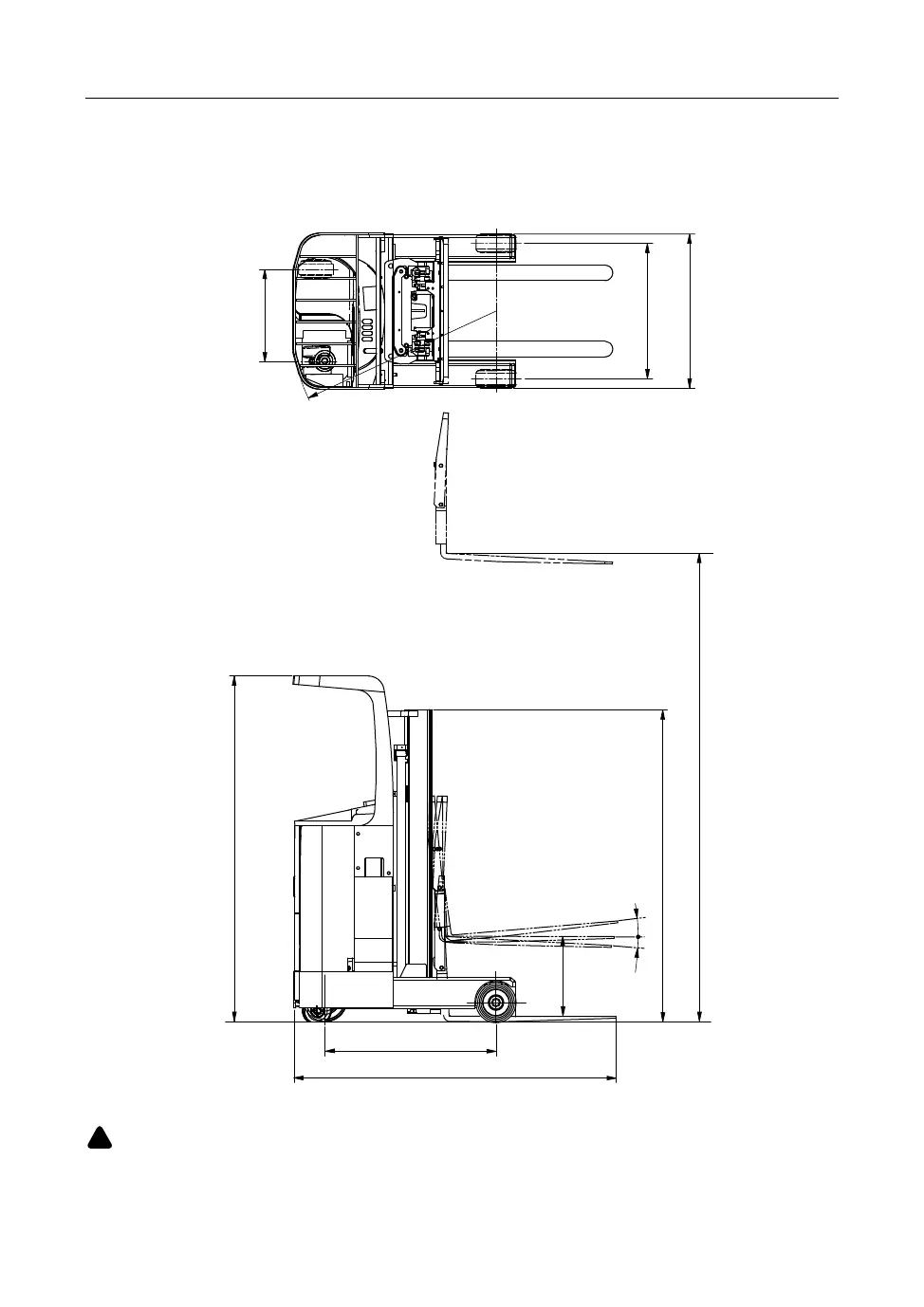
26.1 DIMENSIONS
The specifications are subject to change without any advance notice to
improve the quality.
!
26. SPECIFICATIONS
A
B
C
D
F
G
H
R
L
M
I
FX948
E

Table of Contents

Related product manuals