EasyManua.ls Logo

CommScope CMC-21 - Page 22

CommScope CMC-21
38 pages
Print Icon
To Next Page IconTo Next Page
To Next Page IconTo Next Page
To Previous Page IconTo Previous Page
To Previous Page IconTo Previous Page
Loading...
CommScope Instruction Guide
860647713, Rev B, V.05
Page 22
38 Pages
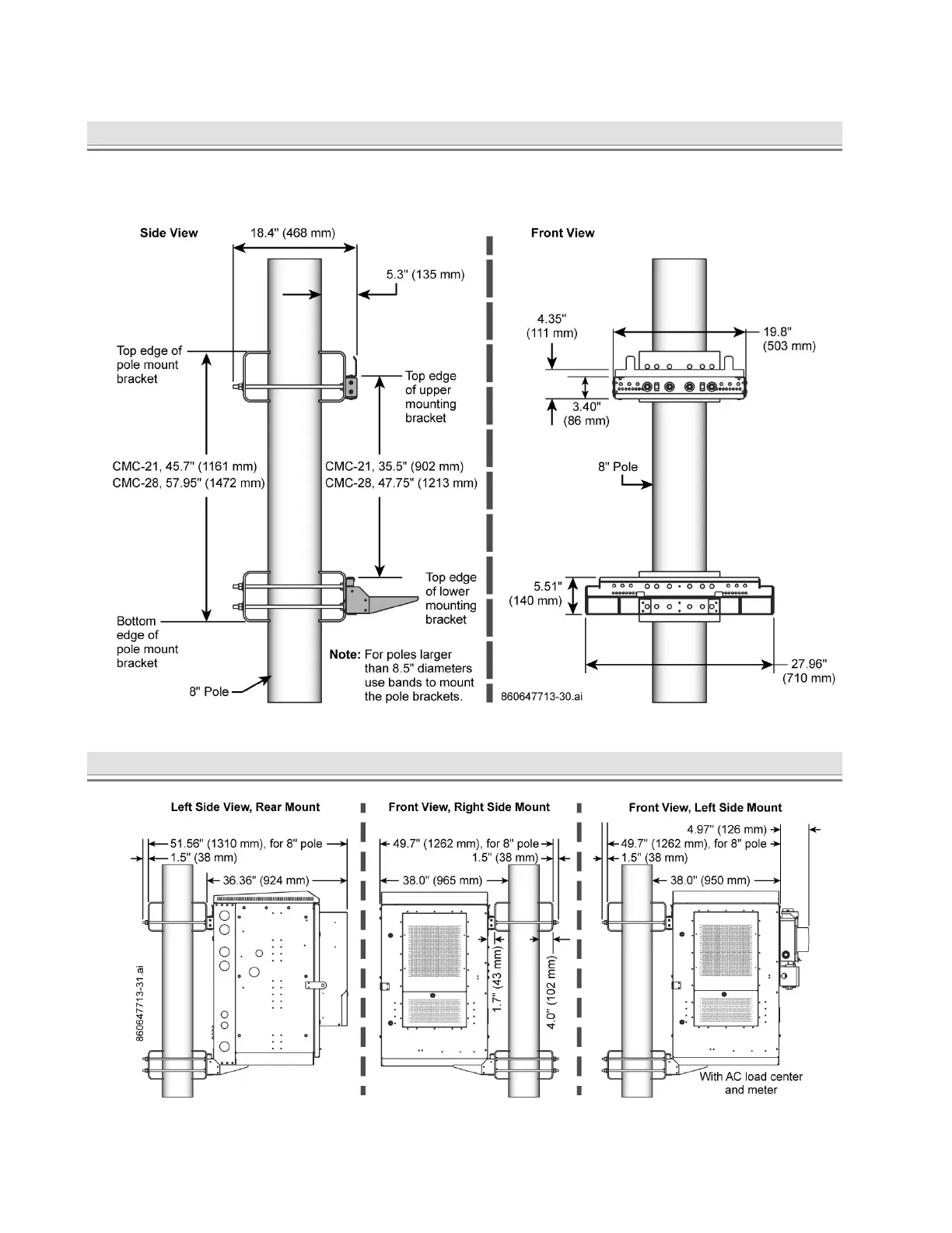
760242250 Setting Upper and Lower Mounting Bracket Positions
Use the guidelines in Figure 31, Figure 32, and Figure 35 to horizontally position pole mount, upper, and
lower mounting brackets on an eight-inch pole. You may also vertically position the pole mount brackets
on poles larger than eight inches per Figure 33.
Figure 31. Pole Mount Bracket Positions for CMC-21/28/35 Cabinets, 8-Inch Pole
Pole Mount Kit 760242250Pole Mount Clearances, 8-Inch
Figure 32. Cabinet with HX Door, Installation onto Pole; Rear, Right and Left Side

Related product manuals