EasyManua.ls Logo

Compool CP3000 - Low Voltage Wiring

Compool CP3000
43 pages
Print Icon
To Next Page IconTo Next Page
To Next Page IconTo Next Page
To Previous Page IconTo Previous Page
To Previous Page IconTo Previous Page
Loading...
Compool Cp3000
9
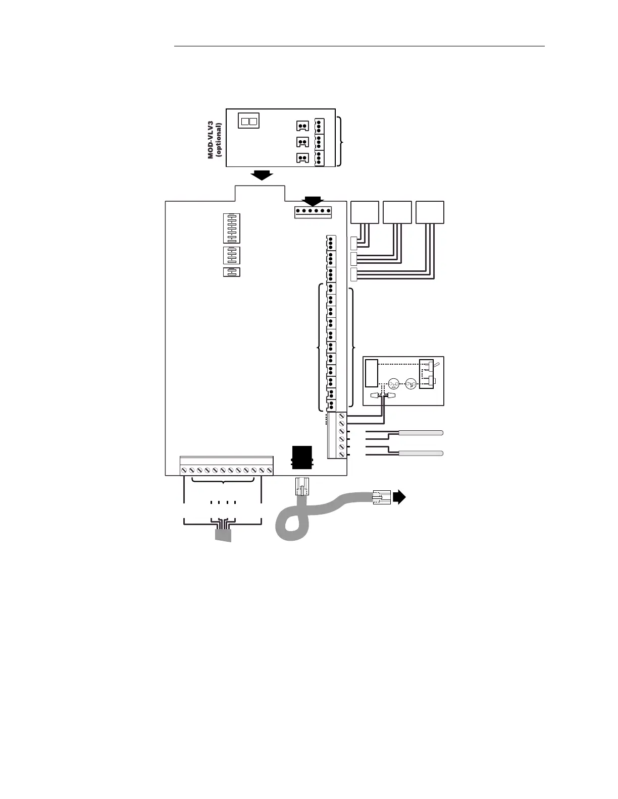
LOW VOLTAGE WIRING
Lx3000 Circuit Board
LOW VOLTAGE CABLES
All low voltage connections are made to the circuit board which is located behind the hinged faceplate in left-side
compartment of Lx3000 Power Center.
150 feet of 6-conductor communication cable (model 6COND), and 25 feet of 2-conductor cable (model 2COND) is
provided with the system. Additional cable is available from your distributor.
Determine lengths of hookup cable required to run from the low voltage compartment of the Lx3000 Power Center to
the various pieces of equipment:
to SPA-SIDE REMOTE
INTAKE
VALVE
ACTUATOR ACTUATOR
VALVE
RETURN SOLAR
VALVE
ACTUATOR
HEATER
CONTROL
GAS VALVE
PRESSURE
THERMOSTAT
LIMIT
OFF
ON
SOLAR SENSOR
WATER SENSOR
TRANSFORMER
CONNECTIONS
to CP-3000
RED
GRN
RED
GRN
RELAY CONNECTIONS
SELECT 4 CIRCUITS
RED
YEL
GRN
BLU
ORG
BLK
S
S
S 3
S
+10
GND
REM1
REMF
SPA
HLMP
REM5
REM4
REM3
REM2
HBST
REM6
WTS-
SPA
STS+
STS-
HTR
2SPD
PMP
SOL
EHTR
AUX6
AUX5
AUX4
AUX3
VLV
AUX1
AUX2
FLTR
SOL
VLV
VLV
RET
18
WTS+
FREEZ PORTHI SPD
FLTR
AUX1
AUX2
AUX3
AUX4
AUX5
AUX6
SPA
FLTR
SOLR
AUX1
SOLAR
MANHT
10 24
TO CP-3000
BLU
BLU
INT
3
ON
3
ON
ON
PC-LX3000
FEATURES
COMPOOL 10890D
CAUTION: DO NOT SHORT PINS OF RELAY SOCKETS
VLV2
VLV3
VLV1
COMPOOL 11040A
MOD-VLV3
VLV1
WITH
VLV2
O
N
AUXILIARY VALVE
ACTUATORS
VLV2
WITH
VLV3
Installation

Related product manuals