EasyManua.ls Logo

Corghi ProLine 60 - Anzeigefeld und Bediengerät; Einstellungen; Einstellungen und Betrieb

Corghi ProLine 60
Print Icon
To Next Page IconTo Next Page
To Next Page IconTo Next Page
To Previous Page IconTo Previous Page
To Previous Page IconTo Previous Page
Loading...
102 ProLine 60 – Betriebsanleitung
6. EINSTELLUNGEN UND
BETRIEB
6.1 EINSTELLUNGEN
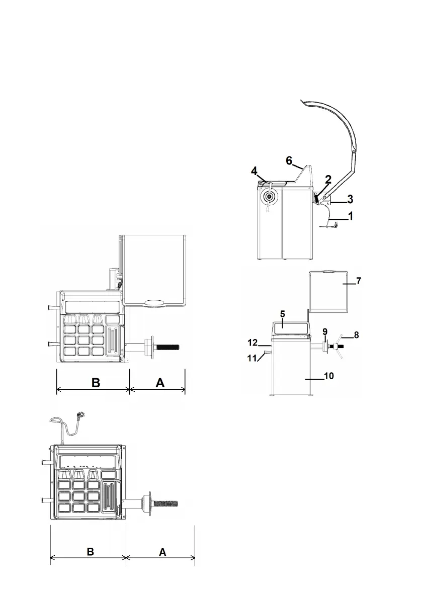
1 - Stromanschluss und 2 - Rückholfeder
Stecker
3 - Hauptschalter 4 -
Manueller Abstandsde-
tektor
5 - Bediengerät 6 - Auswuchtgewichte-
deckel
7 - Abdeckung 8 - Schnellmutter
9 - Auswuchtwelle 10 - Gehäuse
11 -
Kegellagergriff
12 - Ein-/Aus-Schalter
Die Maschine muss sachgemäß installiert,
bedient und regelmäßig gewartet werden, um
Unfälle und Verletzungen zu vermeiden.
5.1.8 BEDIENERPOSITION
In Abb. 11 sind die Bedienerpositionen während
der verschiedenen Betriebsphasen dargestellt:
A Montage/Demontage, Messlauf, Größenerken-
nung (sofern vorgesehen) und Auswuchtvorgänge
B Auswahl des Maschinenprogramms
Auf diese Weise ist der Bediener in der Lage,
jeden Auswuchtvorgang durchzuführen, zu über-
wachen und dessen Ergebnis zu prüfen und bei
unvorhergesehenen Ereignissen einzugreifen.

Table of Contents

Related product manuals