EasyManua.ls Logo

Corghi ProLine 60 - 6. CONFIGURATION & USE; OPERATOR POSITION; CONFIGURATION OVERVIEW

Corghi ProLine 60
Print Icon
To Next Page IconTo Next Page
To Next Page IconTo Next Page
To Previous Page IconTo Previous Page
To Previous Page IconTo Previous Page
Loading...
42 ProLine 60 - Operator's Manual
6. CONFIGURATION & USE
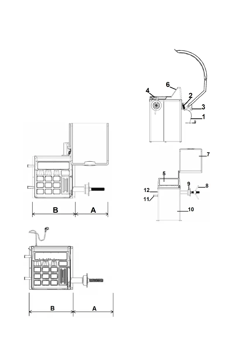
6.1 CONFIGURATION
1 - power &plug 2 - Return Spring
3 - main switch 4 -
Manual distance detector
5 - control panel 6 - Weight Tray
7 - Hood 8 - Quick Nut
9 - Balance Shaft 10 - body
11 -
Cone Storage Handle
12 - power switch
5.1.8 OPERATOR POSITION
Figure 11 shows the operator's positions during
the various work phases:
A Mounting/Demounting, spin, dimension de-
tection (where foreseen) and wheel balancing
operations
B Machine program selection
In this way, the operator is able to perform,
monitor and check the outcome of each wheel
balancing and intervene in case of unforeseen
events.

Table of Contents

Related product manuals