EasyManua.ls Logo

CPS SC Series - Page 18

CPS SC Series
78 pages
Print Icon
To Next Page IconTo Next Page
To Next Page IconTo Next Page
To Previous Page IconTo Previous Page
To Previous Page IconTo Previous Page
Loading...
14
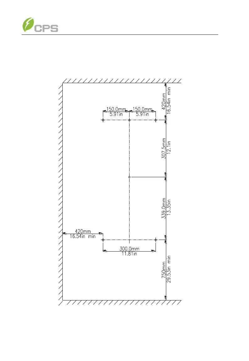
(3) Secure the bracket with bolts through the mounting holes and install
the inverter:
(a) Mark the 6 bolt holes for mounting the bracket as shown in Figure 3-4;
Figure 3-4 Bracket mounting dimensions
(b) Drill holes at the marked positions with a diameter of 0.4 inch drill

Related product manuals