EasyManua.ls Logo

CPS SCA25KTL-DO/US-208 - Communication Connection

CPS SCA25KTL-DO/US-208
148 pages
Print Icon
To Next Page IconTo Next Page
To Next Page IconTo Next Page
To Previous Page IconTo Previous Page
To Previous Page IconTo Previous Page
Loading...
57
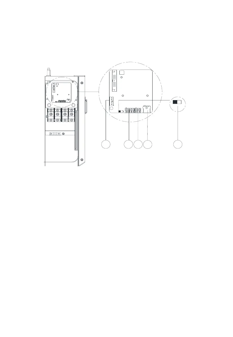
3.4 Communication Connection
CPS SCA25KTL-DO/US-208 inverters support industry standard Modbus
RS485 communication.
1 2 3
ON
OFF
S1
5
OFF
ON
+12V
12VGND
RS485_B-
RS485_A+
485_GND
+12V
12VGND
RS485_B-
RS485_A+
RS485_GND
RS485_GND
RS485_A+
RS485_B-
P9
P6
P7
P8
S1
P1
OFF
ON
+12V
12VGND
RS485_B-
RS485_A+
485_GND
+12V
12VGND
RS485_B-
RS485_A+
RS485_GND
RS485_GND
RS485_A+
RS485_B-
P9
P6
P7
P8
S1
P1
4
Figure 3-291 Communication Board in the Wire-box

Table of Contents

Related product manuals