EasyManua.ls Logo

Cuenod C75 - Tableau de Commande TC

Cuenod C75
44 pages
Print Icon
To Next Page IconTo Next Page
To Next Page IconTo Next Page
To Previous Page IconTo Previous Page
To Previous Page IconTo Previous Page
Loading...
11
09/2005 - Art. Nr. 13 020 047A
TC
Tableau de commande TC
Tous les organes de commande sont
visibles depuis l’extérieur. Un couvercle
transparent amovible clipsé sur le capot
donne accès aux différentes
commandes et contrôles possibles pour
régler et ensuite exploiter le brûleur.
Le tableau de commande TC comporte
également un fusible de protection du
circuit commande.
Pour déposer le couvercle exercer une
pression manuelle d’un côté ou des
deux côtés s en tirant à soi pour
libérer le couvercle.
Pour remettre en position, placer dans
le logement et exercer une pression sur
les deux points clips.
Option: afficheur A4
Si l’afficheur est à l’envers, procéder
comme suit:
·
Déclipser l’afficheur en introduisant
un tournevis dans la fenêtre A4.1.
·
Tourner de 180°.
·
Reclipser l’afficheur dans le support.
·
Vérifier qu’aucun corps étranger
n’interrompe la transmission IR entre
le coffret et l’afficheur.
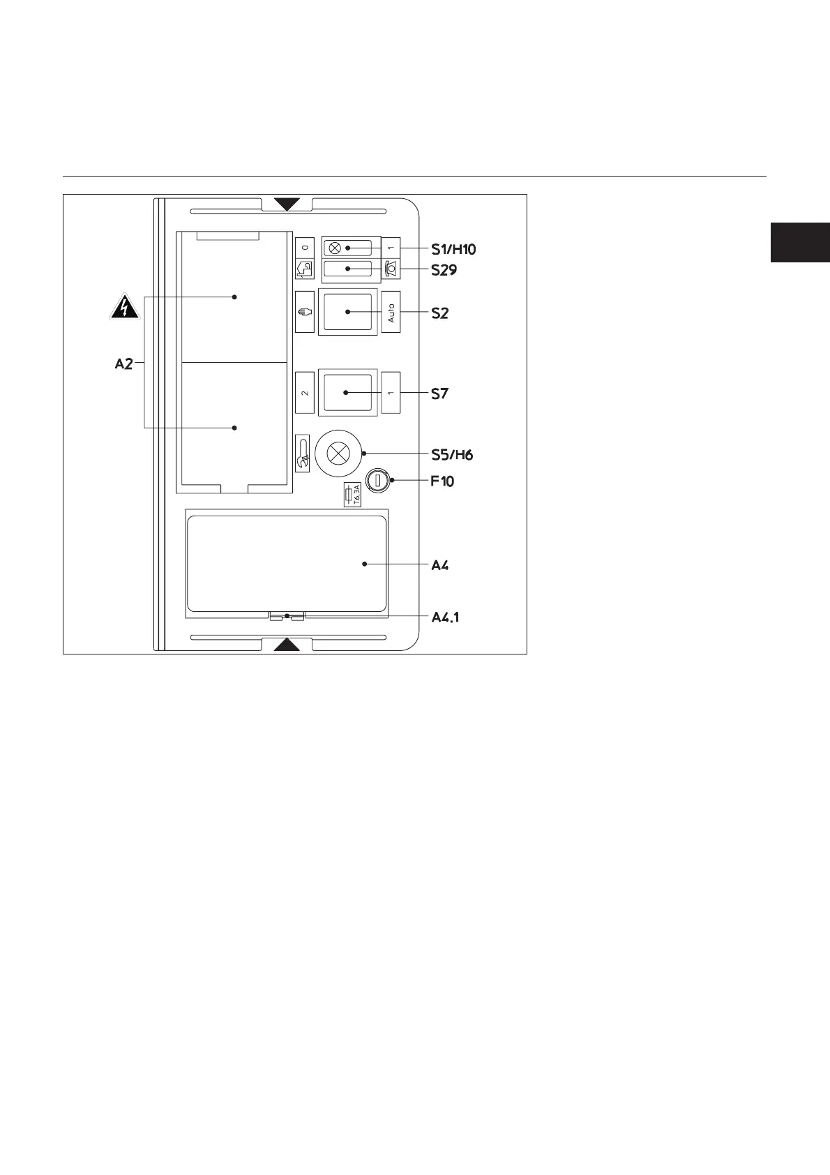
Mise en service
Description, fonctions
Tableau de commande TC
Fonction des interrupteurs du TC
A2 Emplacements normalisés 48x48
ou 48x96mm pour installer un
régulateur de puissance (option)
A4 Obturateur translucide , à déposer
pour visualiser les signaux
lumineux codifiés transmis par le
coffret
Emplacement réservé pour
implanter un afficheur (option)
A4.1 Fenêtre de démontage, soit de
l’obturateur, soit de l’afficheur
(option)
DB9 Emplacement réservé pour
implanter une prise d’information
placée sous le TC (option)
F10 Fusible du TC
Interrupteurs trois positions
S1 Interrupteur général du TC
0 Hors tension
1 Sous tension, voyant vert
H10 allumé sur l’interrupteur
S2 Choix de la régulation de
puissance
K Mode manuel
Auto Mode automatique local
S5 Interrupteur délocalisé du coffret :
- visualisation d’un défaut, voyant
rouge H6 allumé
- bouton-poussoir de réarmement
S7 Fonctionne couplé avec les
interrupteurs: S29J - S2 K
Sélection des allures
1 Débit d’allumage et 1
re
allure
2 Débit nominal et 2
ème
allure
S29 Choix du lieu de commande
J Mode local
H Mode télécommandé
(option)
FR

Table of Contents

Related product manuals