EasyManua.ls Logo

Daikin iTM plus - 3 Installation; Screw Mounting to Control Enclosure; Dimensions of Itm Plus Adaptor

Daikin iTM plus
36 pages
Print Icon
To Next Page IconTo Next Page
To Next Page IconTo Next Page
To Previous Page IconTo Previous Page
To Previous Page IconTo Previous Page
Loading...
22
Installation Manual 3P291714-4
DCM601A72 iTM plus adaptor
English
3 Installation
The iTM plus adaptor can be installed in the following two ways:
Screw mounting to control enclosure
DIN rail mounting
3.1 Screw mounting to control enclosure
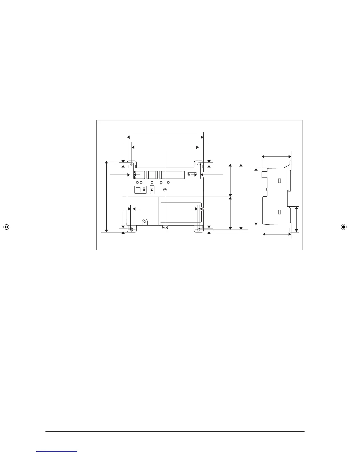
3.1.1 Dimensions of iTM plus adaptor
The gure below shows the dimensions of the iTM plus adaptor.
5-7/8
4-23/32
5-11/32
2-11/162-21/32
2-1/16
6-5/16
2-13/32
2-13/32
(in.)
1/4 1/4
5/32
5/32
1/4
5/32
1/4
5-1/2
5/32
01_EN_3P291714-4.indd 22 3/26/2012 5:00:47 PM

Table of Contents

Related product manuals