EasyManua.ls Logo

Datalogic SG2 BASE Series - 15.11 (SE-SR2) SAFETY RELAY; 15.13 (CSME-03 VU24-Y14) EDM RELAY BOX

Datalogic SG2 BASE Series
96 pages
Print Icon
To Next Page IconTo Next Page
To Next Page IconTo Next Page
To Previous Page IconTo Previous Page
To Previous Page IconTo Previous Page
Loading...
SG2 MUTING
78/96
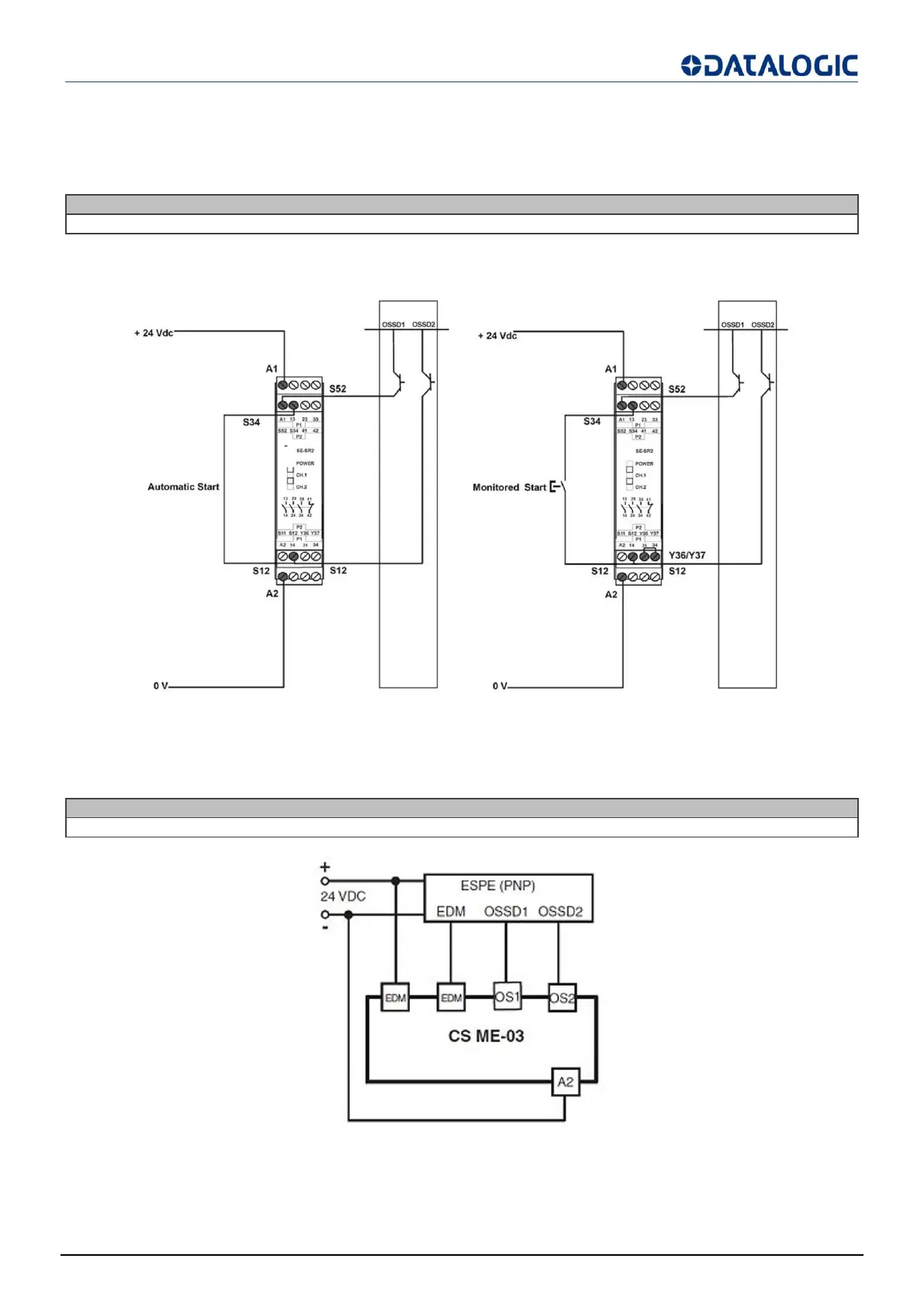
15.11 (SE-SR2) SAFETY RELAY
15.12
MODEL
DESCRIPTION
CODE
SE-SR2
Type 4 safety relay - 3 NQ 1 NC
95ACC6170
The drawing show the connection between the safety light curtain and the Type 4 safety relay of the SE-SR2 series
operating in the automatic Restart mode.
Fig 102 - Safety relay
15.13 (CSME-03VU24-Y14) EDM RELAY BOX
MODEL
DESCRIPTION
CODE
CSME-03VU24-Y14
EDM Relay
95ASE1270
Fig 103 - EDM Relay

Table of Contents

Other manuals for Datalogic SG2 BASE Series