EasyManua.ls Logo

Delta C2000 Plus Series - EMC-A22 A - Extension Card for 2-Point Analog Input; 2-Point Analog Output

Delta C2000 Plus Series
1259 pages
Print Icon
To Next Page IconTo Next Page
To Next Page IconTo Next Page
To Previous Page IconTo Previous Page
To Previous Page IconTo Previous Page
Loading...
Chapter 8 Option CardsC2000 Plus
8-17
8-6 EMC-A22A -- Extension card for 2-point analog input/ 2-point analog output
8-6-1 Product File
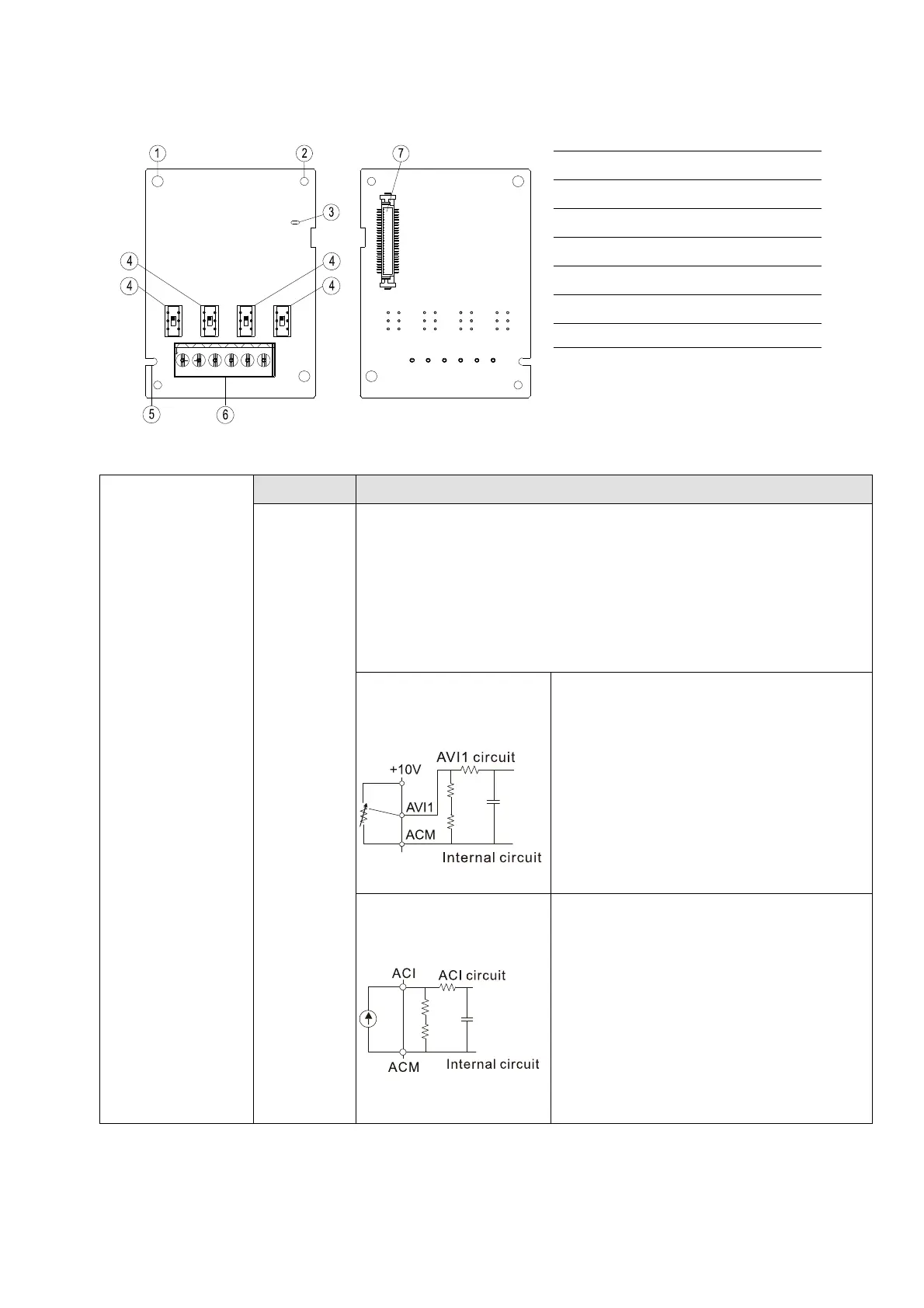
1. Screw fixing hole
2. Positioning hole
3. POWER indicator
4. Switch
5. Fool-proof groove
6. Terminal block
7. AC motor drive connection port
8-6-2 Terminal Specifications
Analog I/O
Extension Card
Terminals Descriptions
AI10, AI11
Refer to Pr.14-00–Pr.14-01 for function selection (input), and Pr.14-
18–Pr.14-19 for mode selection.
There are two sets of AI port, SSW3 (AI10) and SSW4 (AI11),
which can be switched to Voltage or Current mode.
Voltage mode: Input 0–10 V
Current mode: Input 0–20 mA / 4–20 mA
Analog voltage
frequency command
Impedance: 20 kΩ
Range: 0–10 V = 0–Max. Output
Frequency (Pr.01-00)
Switch: AI10 / AI11 Switch, default 0–10 V
Analog current frequency
command
Impedance: 250 Ω
Range: 0–20 mA / 4–20 mA = 0–Max.
Output Frequency (Pr.01-00)
Switch: AI10 / AI11 Switch, default 0–10 V

Table of Contents

Related product manuals