EasyManua.ls Logo

Delta NT Series - Electrical Connection Precaution

Delta NT Series
110 pages
Print Icon
To Next Page IconTo Next Page
To Next Page IconTo Next Page
To Previous Page IconTo Previous Page
To Previous Page IconTo Previous Page
Loading...
Chapter 4 Installation & Wiring
34
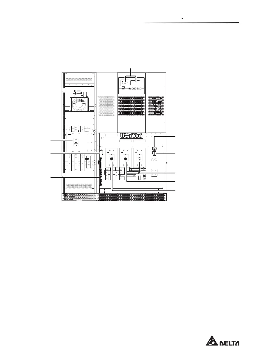
Figure 4-27 Front view with door open: one battery start-up switch, two fuses,
four breakers, one SMART slot, and communication interfaces (NT-Q
board).
Figure 4-27
Rectifier input
breaker
SMART slot
Communication
interfaces
(NT-Q board)
LCD control panel
Battery start-up
switch
UPS output breaker
Fan fuse (left)/
Power fuse (right)
Reserve input breaker
Manual bypass breaker

Table of Contents

Related product manuals