EasyManua.ls Logo

Delta VFD-EL-W Series - Appendix C: Selecting the Right AC Motor Drive

Delta VFD-EL-W Series
217 pages
Print Icon
To Next Page IconTo Next Page
To Next Page IconTo Next Page
To Previous Page IconTo Previous Page
To Previous Page IconTo Previous Page
Loading...
Appendix B. Accessories VFD-EL-W
200
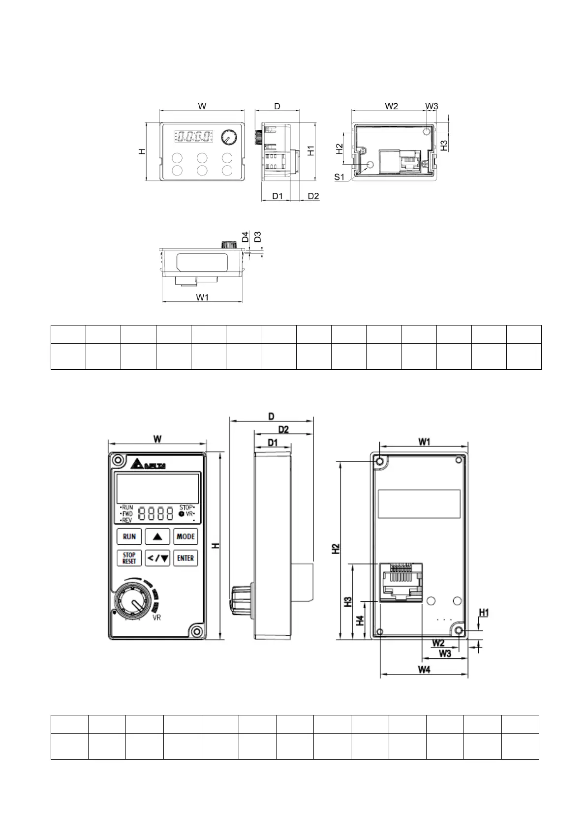
B-3-2 Digital Keypad VFD-PU08 / VFD-PU08V
VFD-PU08 Dimension
Unit: mm (inch)
W
W1
W2
W3
H
H1
H2
H3
D
D1
D2
D3
D4
S1
68.0
(2.68)
63.8
(2.51)
59.9
(2.36)
8.1
(0.32)
46.8
(1.84)
42.0
(1.65)
26.3
(1.04)
7.5
(0.30)
35.6
(1.40)
22.7
(0.89)
7.6
(0.30)
2.2
(0.09)
1.3
(0.05)
M3*0.5
(2X)
VFD-PU08V Dimension
Unit: mm [inch)
W1
W2
W3
W4
W
H1
H2
H3
H4
H
D1
D2
D
32.9
(1.30)
3.6
(0.14)
17.3
(0.68)
32.8
(1.29)
36.5
(1.44)
3.5
(0.14)
66.5
(2.62)
28.3
(1.11)
14.3
(0.56)
70.0
(2.76)
13.8
(0.54)
22.0
(0.87)
31.0
(1.22)

Other manuals for Delta VFD-EL-W Series

Related product manuals