EasyManua.ls Logo

Devatec ElectroVap - Installation Procedure

Devatec ElectroVap
56 pages
Print Icon
To Next Page IconTo Next Page
To Next Page IconTo Next Page
To Previous Page IconTo Previous Page
To Previous Page IconTo Previous Page
Loading...
ELECTROVAP® ELMC
10
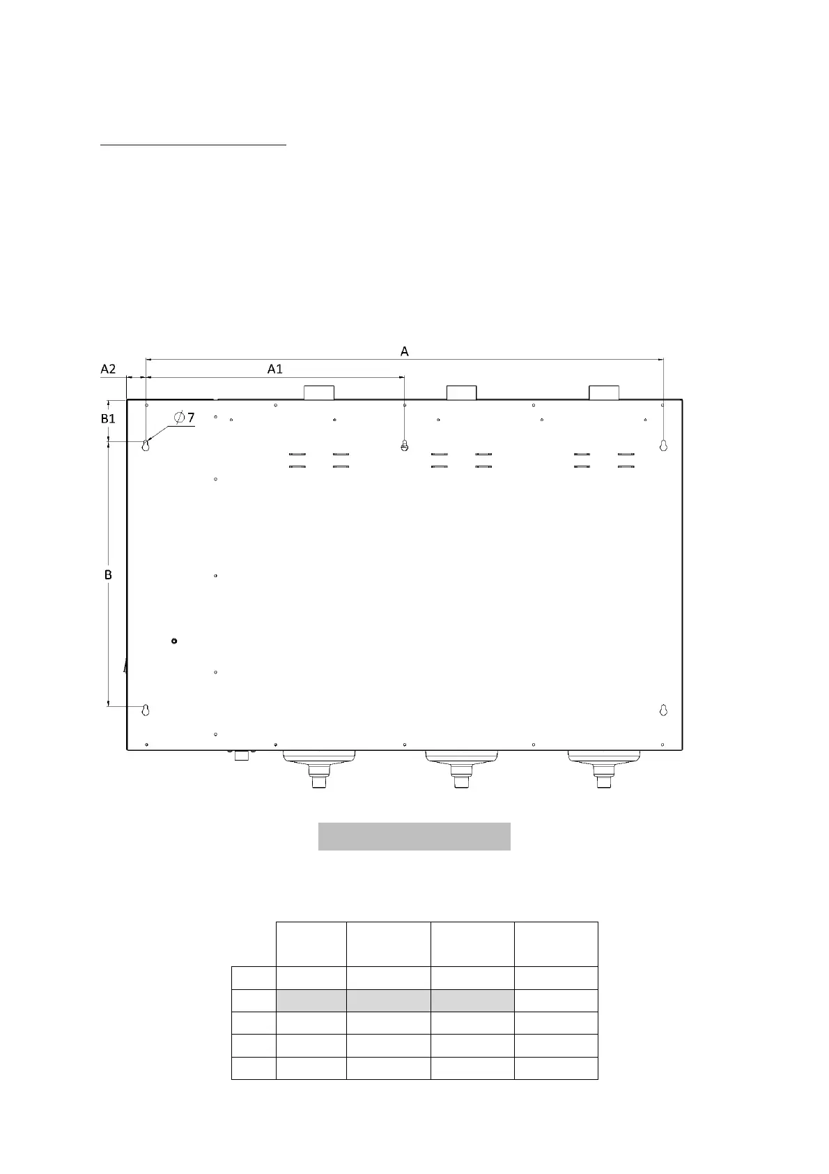
3. INSTALLATION
3.1 PROCEDURE
Mark and drill where indicated (holes size depends on the selected dowels and support materials).
Put the dowels in the holes.
Screw the top screws into the dowels (M6 recommended), let them protrude by about 10 mm/0.39in.
Hang the device to the top screws and align it vertically and horizontally with a bubble level.
Tighten up all 4 screws.
ELMC
5-15
ELMC
20-30
ELMC
40-60
ELMC
90
Has:
400
450
750
1000
A1:
500
A2:
35
53
23
38
B:
400
510
510
510
B1:
81
81
81
81
Fig. 3-1. Installation holes

Other manuals for Devatec ElectroVap

Related product manuals