EasyManua.ls Logo

DKS 9210 - Primary; Secondary (Bi-Parting) Wiring

DKS 9210
57 pages
Print Icon
To Next Page IconTo Next Page
To Next Page IconTo Next Page
To Previous Page IconTo Previous Page
To Previous Page IconTo Previous Page
Loading...
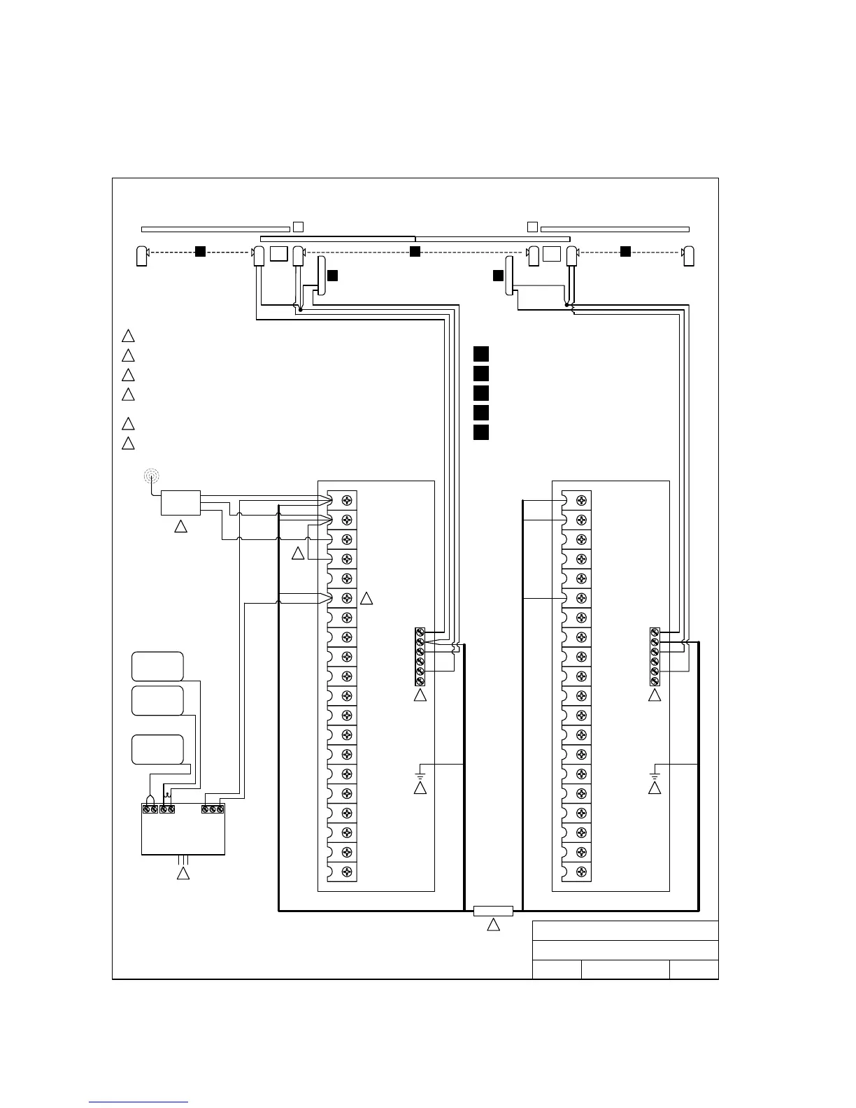
2.5 Primary – Secondary (Bi-Parting) Gate Wiring
The interface wiring between the two operators requires seven (4) wires (18 AWG minimum) for
control and secondary entrapment protection device connection. Each operator must be connected to
its own power source as described in section 2.1.
1234567891011121314
15
16 17 18
4404-010
Circuit Board
Secondary Entrapment
Protection Inputs
DOORKING, INC., INGLEWOOD, CA 90301
Title:
Date: Rev.Dwg. No.
1234567891011121314
15
16 17 18
4404-010
Circuit Board
Secondary Entrapment
Protection Inputs
Common
Relay
Power
Exit Loop
Reverse Loop
Reverse Loop
DoorKing
9409-010
TB1 TB2 TB3
Conduit
Primary
Operator
Secondary
Operator
Yellow
Brown
Orange
Green
Green
Yellow
Gray
Brown
Orange
A B C
A
Open direction non-contact sensor - Primary Operator.
C
Open direction non-contact sensor - Secondary Operator.
B
Close direction non-contact sensor - Both Operators.
Open direction contact sensor - Secondary Operator.
E
D
Open direction contact sensor - Primary Operator.
D E
D E
1
Connect the Primary / Secondary interconnection wiring as shown. Wire colors are based
on DoorKing interconnection cable (P/N 2600-75x).
Place a jumper from terminal 2 to terminal 4 in the PRIMARY operator only.
Set SW 1, Switch 3 to the OFF position in the PRIMARY operator.
Plug a two-channel (P/N 9409-010) loop detector into the OPEN loop port in the
PRIMARY operator. Connect loops and loop detector as shown.
Connect radio receiver as shown. If partial open feature is desired with radio receiver,
connect receiver relay to terminal 5. Connect other OPEN devices to terminal 4 (Full
Open) or terminal 5 (Partial Open) as required.
Connect standard reverse devices to terminal 6 and/or connect secondary non-contact
and/or contact sensors to Secondary Entrapment Protection inputs as shown.
2
3
4
5
1
2
3
4
5
5 5
6
Connect chassis ground to chassis ground.
6 6
11/07
A
4404-DUAL-1
Model 9210, 9220, 9230, 9530
Primary / Secondary Wiring Diagram
Open Photo
Close Photo
Open Edge
Close Edge
Common
Common
Open Photo
Close Photo
Open Edge
Close Edge
Common
Common
20
19
19
20
Gray
Page 30 9210-065-H-8-08

Table of Contents

Related product manuals