EasyManua.ls Logo

Dormakaba ES 200 - Lock Wiring Diagram

Dormakaba ES 200
Print Icon
To Next Page IconTo Next Page
To Next Page IconTo Next Page
To Previous Page IconTo Previous Page
To Previous Page IconTo Previous Page
Loading...
GN
YE
WH
BN
WH
GN
YE
BN
22 23 24 25
ON
OFF
26 27 28 29 1 2
25 24 23 22
OFF
ON
2 1 29 28 27 26
21
20
16
14
13
12
11
10
9
8
7
6
3
2
1
19
18
17
15
5
4
1
2
3
6
7
8
9
10
11
12
13
14
16
20
21
4
5
15
17
18
19
1 2
ON
ES 200
GN
YE
WH
BN
WH
GN
YE
BN
22 23 24 25
ON
OFF
26 27 28 29 1 2
25 24 23 22
OFF
ON
2 1 29 28 27 26
21
20
16
14
13
12
11
10
9
8
7
6
3
2
1
19
18
17
15
5
4
1
2
3
6
7
8
9
10
11
12
13
14
16
20
21
4
5
15
17
18
19
1 2
ON
ES 200
GN
YE
WH
BN
WH
GN
YE
BN
22 23 24 25
ON
OFF
26 27 28 29 1 2
25 24 23 22
OFF
ON
2 1 29 28 27 26
21
20
16
14
13
12
11
10
9
8
7
6
3
2
1
19
18
17
15
5
4
1
2
3
6
7
8
9
10
11
12
13
14
16
20
21
4
5
15
17
18
19
1 2
ON
ES 200
WH
BN
GN
YE
WH
BN
GN
YE
22 23 24 25
ON
OFF
26 27 28 29 1 2
1
2
3
4
5
6
9
10
11
12
15
16
17
18
19
20
21
7
8
13
14
25 24 23 22
OFF
ON
2 1 29 28 27 26
21
20
19
18
17
16
15
12
11
10
9
6
5
4
3
2
1
14
13
8
7
1 2
ON
ES 200
ES 200
64
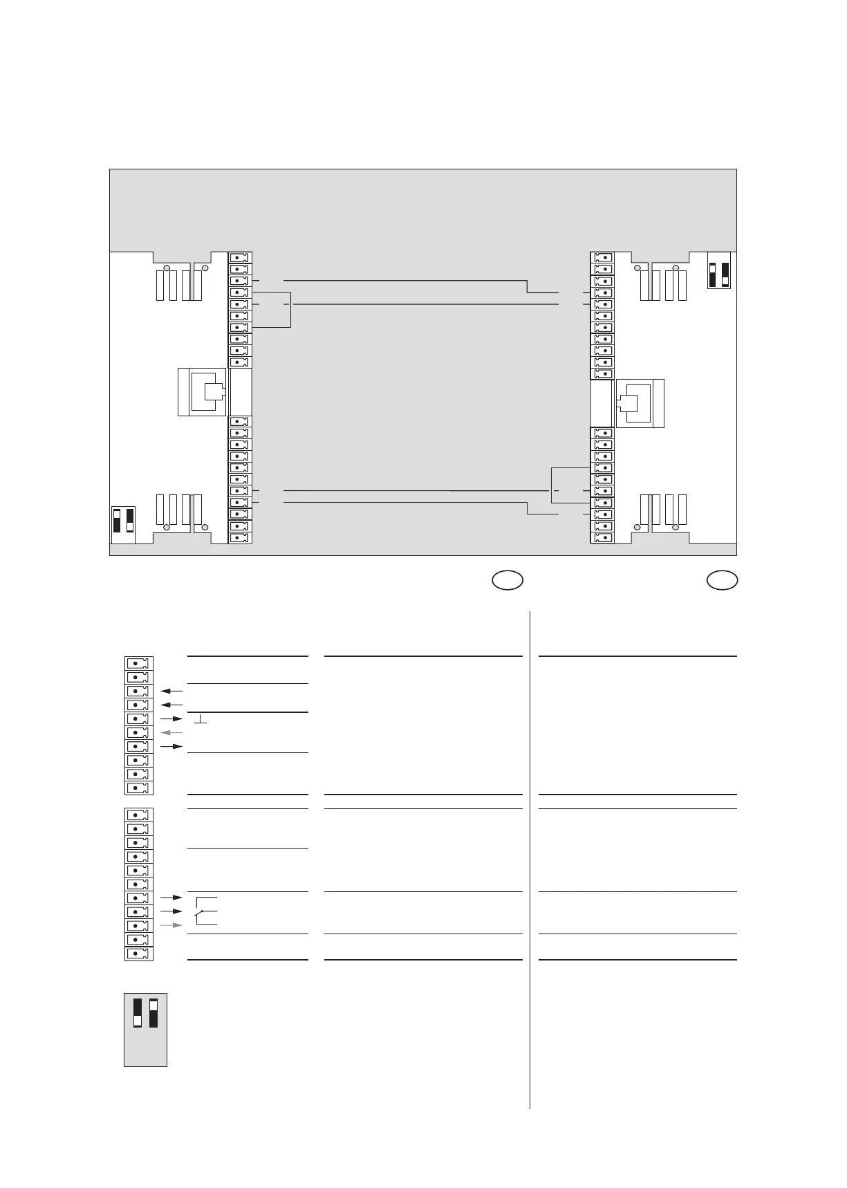
Anschlußplan Schleuse
Wiring diagram lock
TÜR A ES 200 Funktionsmodul
DOOR A ES 200 function module
Keine Einstellung am PDA erforderlich
no setting at the PDA required
TÜR B ES 200 Funktionsmodul
DOOR B ES 200 function module
21
20
19 IN -
18 IN +
17 GND
16 IN
15 +27 V DC
14
13
12
11
10
9
8
7
6
5 NO
4 C
3 NC
2
1
IN 4
IN 3 Schleuse sperren Lock disabled
(Eigene Tür wird gesperrt) (own door is blocked out)
OUT 1
IN 2
OUT 4
IN 1
OUT 2 Schleuse sperren Lock disabled
(Andere Tür wird gesperrt) (other door is blocked out)
OUT 3
Digitale Ausgänge Digital output
Beschreibung und
Klemmendefinition
DE
Tür A und B: Steuerung
Digitale Eingänge
Description and
terminal connections
EN
Door A and B: Control system
Digital input
DCW Adresse 49

Related product manuals