EasyManua.ls Logo

Dunkirk DCBF-125 - Page 5

Dunkirk DCBF-125
60 pages
Print Icon
To Next Page IconTo Next Page
To Next Page IconTo Next Page
To Previous Page IconTo Previous Page
To Previous Page IconTo Previous Page
Loading...
5
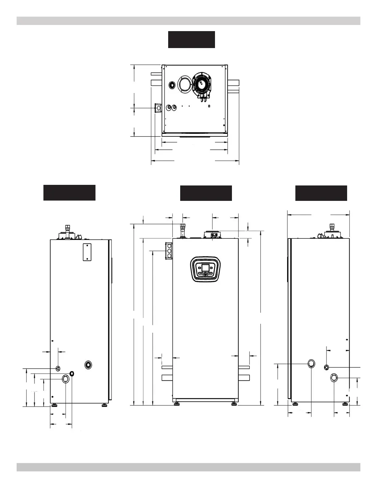
PHYSICAL DATA
240012564 REV A, [05/15/2019]
Top View
All Models
Front View
All Models
Right Side View
All Models
Left Side View
All Models
10.44 in.
[266 mm]
6.87 in.
[175 mm]
18.56 in. [472 mm]
20.50 in. [521 mm]
24.70 in. [628 mm]
2.22 in.
[56.4 mm]
9.13 in.
[232 mm]
7.92 in.
[201 mm]
6.63 in.
[168 mm]
4.35 in.
[111 mm]
6.12 in.
[156 mm]
6.12 in.
[155 mm]
7.31 in.
[186 mm]
3.42 in.
[87 mm]
1.80 in.
[46 mm]
43.65 in.
[1.1 m]
40.23 in.
[1.0 m]
37.20 in.
[.95 m]
2.99 in.
[76 mm]
3.15 in.
[80 mm]
10 in.
[255 mm]
6.56 in.
[167 mm]
4.35 in.
[110 mm]
6.63 in.
[168 mm]
6.47 in.
[165 mm]
42.03 in.
[1.0 m]
17.46 in.
[443 mm]

Table of Contents

Other manuals for Dunkirk DCBF-125

Related product manuals