EasyManua.ls Logo

E-TON EV3 E-MO - Lighting System

E-TON EV3 E-MO
101 pages
Print Icon
To Next Page IconTo Next Page
To Next Page IconTo Next Page
To Previous Page IconTo Previous Page
To Previous Page IconTo Previous Page
Loading...
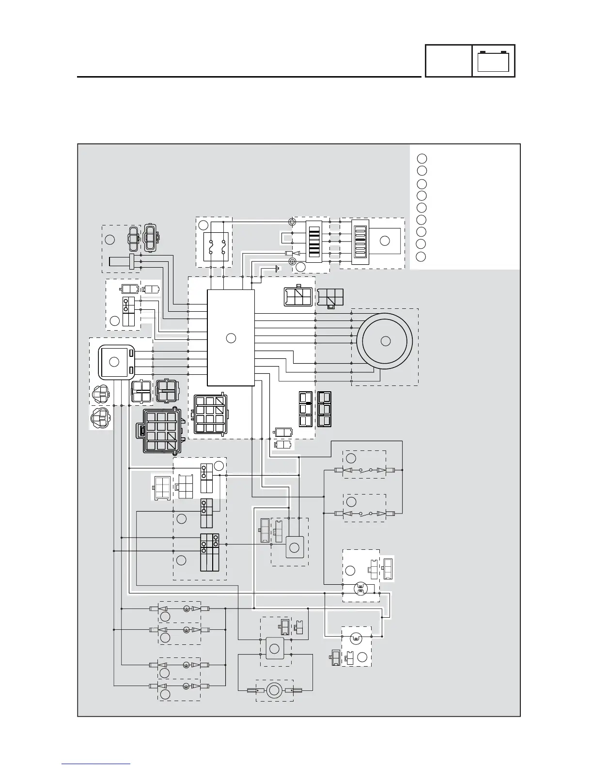
LIGHTING SYSTEM
6-7
LIGHTING SYSTEM
CIRCUIT DIAGRAM
–+
ELEC
ON
OFF
ON
OFF
L
R
PUSH
10A
30A
Y/B B/W
B/W
Y/B
B/W
Gr
B/W
Gr
Br/B
Y/G
G/Y
G/Y
G/Y
G/Y
G/Y
Y/Br
G/B
Br/B
Y/Br
G/B
Br/W
Y/G
G/Y
Br/W
B/Y
LG
LG B/Y
LG
LG
LGLG
Br
Br
LG
Br
Br
Br
BrBr
Br/Y
Br/Y
Br/Y
Y/R
B/Y
Y/R
Br/Y
Br/Y
Br/YBr/Y
R
B
B
R
R/W
B/Y
B/Y
B/Y
B/Y
B/Y
B/Y
L
L
G
G
Y
Y
Gr
Br/W
Y/Br
Y/B
Y/G
Br/B
L
G
Y
R
Or
Or
B
W/Pu
B/Y
B/Y
Y/R
Y/R
Y/R
Br
LG
L/Y
Br/Y
Br/Y
Y/R
R/W
R/W
R/W
R/W
G/Y
G/Y
R/W
B/W
B/WY/B
Br/W
B/W
Br/W
G/B
Y/B
G/B
Y/W
G/W
L/W
Y/W
G/W
L/W
Br/W
B/W
Br/W
B/W
Y/W
W/Pu
G/W
L/W
Br/W
B/W
B/W
B/W
Y/W
G/W
G/B
Br/W
Y/B
B/W
G/B
L/W
Br/W
R/W
R/W
R/W
R/W
R/W
R/W
12V 10W
12V 10W
14
13
12V 10W
12V 10W
16
15
R/W
12V 21/5W
10
11
12
1817
20
1
2
3
4
5
6
9
SIGNAL SW
TURN
HORN SW
HEAD LIGHT SW
Controller
Meter
Fuse
Battery connection
Battery box
Main switch
Head light switch
Headlight
Tail/brake light
5
1
2
4
6
7
11
19
20
ON
OFF
Gr
Br/B
Y/Br
Y/G
Y/Br
Y/G
Y/Br
Y/G
B/W
Gr
Gr
Br/B
Br/B
B/W
B/W
7
8
LGY
L/Y
L/Y
L/Y
L/Y
L/Y
L/Y
L/Y
R/W
R/W
R/W
22
21
Br/Y
Br/Y
R/W
R/W
R/W
R/W
Br/Y
R/W
12V 35W
19

Table of Contents

Related product manuals