EasyManua.ls Logo

EBARA EV-S100P - Page 57

EBARA EV-S100P
113 pages
Print Icon
To Next Page IconTo Next Page
To Next Page IconTo Next Page
To Previous Page IconTo Previous Page
To Previous Page IconTo Previous Page
Loading...
P.38
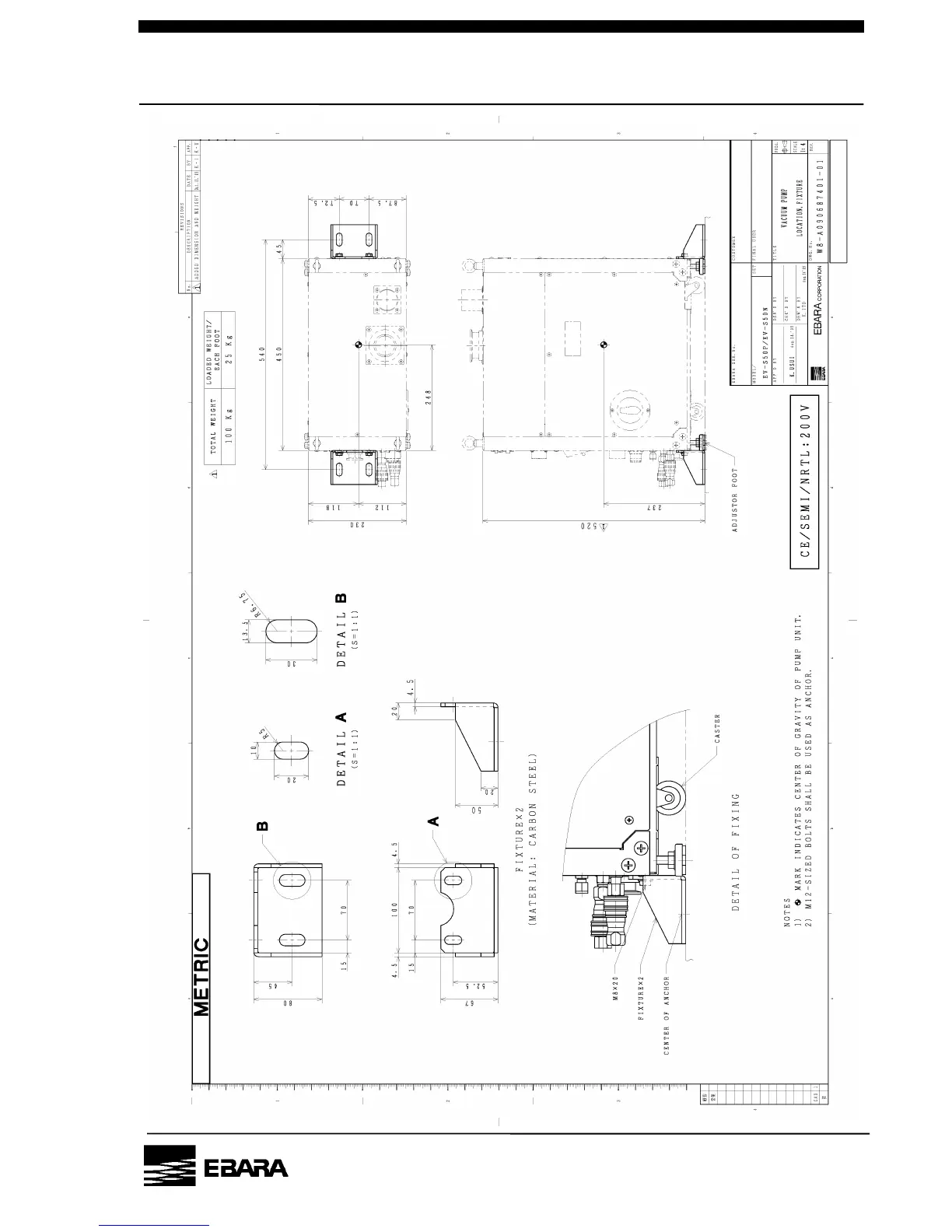
EV-S50 LOCATION,FIXTURE
PM10U
EBARA
CORPORATION

Table of Contents

Related product manuals