EasyManua.ls Logo

Electra DNG 18 - Page 54

Electra DNG 18
164 pages
Print Icon
To Next Page IconTo Next Page
To Next Page IconTo Next Page
To Previous Page IconTo Previous Page
To Previous Page IconTo Previous Page
Loading...
9-4
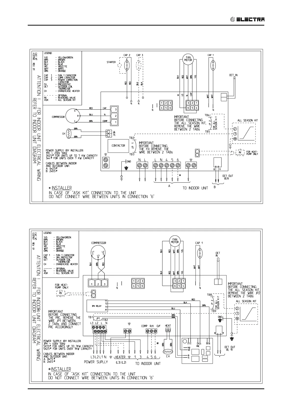
WIRING DIAGRAMS
Revision Y05-01 Service Manual - DNG Series
9.6 Outdoor Unit: OU8-30 1PH
9.7 Outdoor Unit: OU8-30 3PH
CONTENT

Related product manuals