EasyManua.ls Logo

EMKO EAOM-19 - 3.2 Electrical Connection Diagram

EMKO EAOM-19
43 pages
Print Icon
To Next Page IconTo Next Page
To Next Page IconTo Next Page
To Previous Page IconTo Previous Page
To Previous Page IconTo Previous Page
Loading...
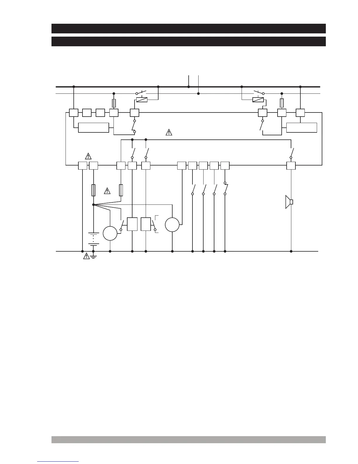
3.2ElectricalConnectionDiagram
14
3.2.1EAOM-19SinglePhaseConnectionsSchematicForTN-C ACPowerSystems
MAINS
MAINSCONTACTOR GENERATORCONTACTOR
LOAD
GENERATOR
GENERATORRELAY
MAINSRELAY
FUSE-4
FUSE-3
L L
L
N N
N
13 18 17 1619
CHARGE
GEN.
D+(W.L.)
B+
CHARGEGENERATOR
FUSE-2
40 A
40 A
FUSE-1
BATTERY
+
-BAT
+BAT
+BAT
STARTER
BATTERY NEGATIVEMUSTBEGROUNDED
START
RELAY
SOLENOID
RELAY
LOWOIL PRESSURE
HIGHTEMPERATURE
CONFIGURABLEINPUT1
CONFIGURABLEINPUT2
HORNOUTPUT
1 2 3 4 5 7891011 6
1512 14
1
1
2
MEASUREMENT
CIRCUIT
MEASUREMENT
CIRCUIT
5A@250VV
5A@250VV
16A@32VZ 16A@32VZ
16A@32VZ
3

Related product manuals