EasyManua.ls Logo

Emotron M20 - Page 42

Emotron M20
56 pages
Print Icon
To Next Page IconTo Next Page
To Next Page IconTo Next Page
To Previous Page IconTo Previous Page
To Previous Page IconTo Previous Page
Loading...
CG Drives & Automation 01-5958-01r0
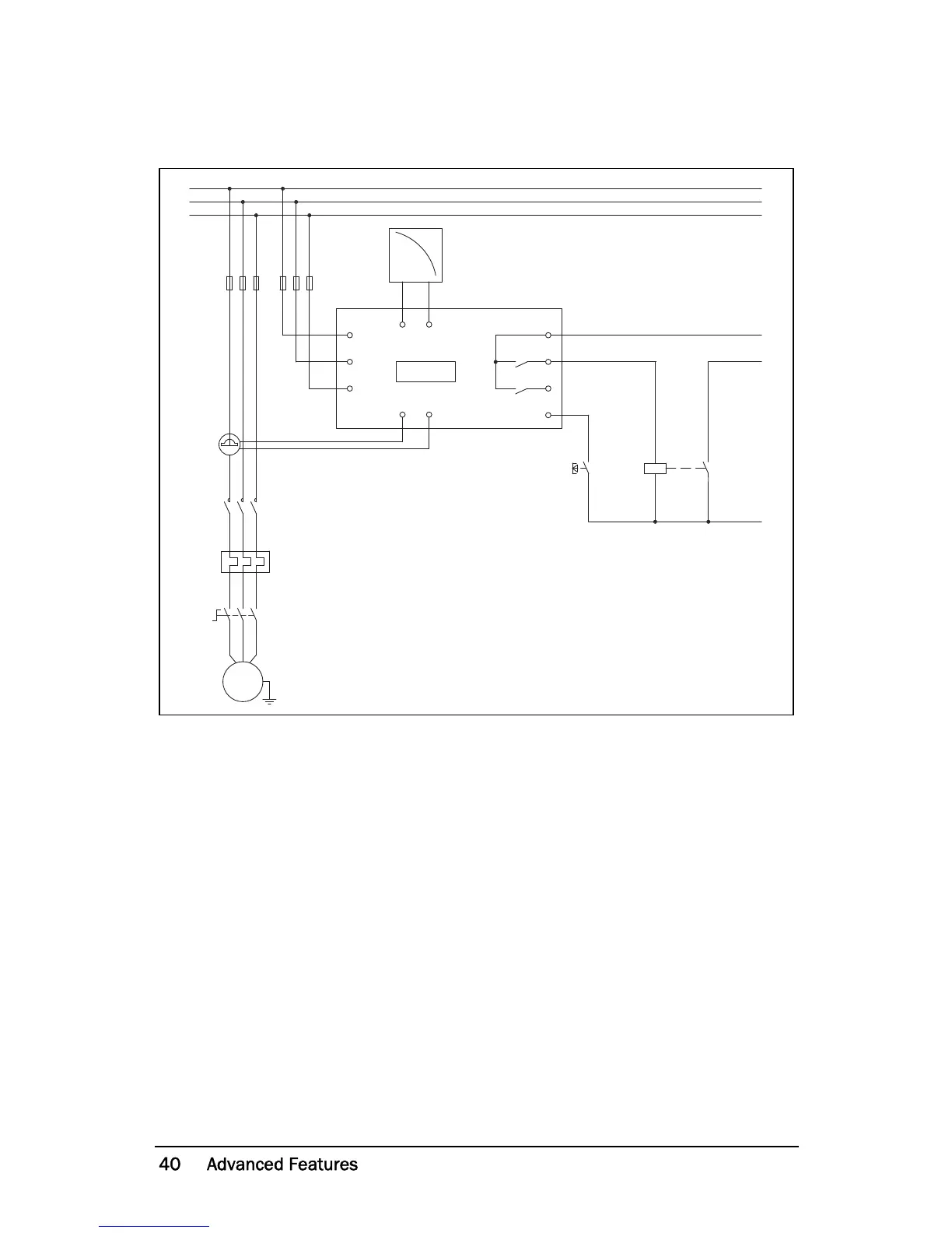
Alternative auxiliary circuit
Fig. 16 Example of auxiliary circuit when VDC is used.
The example above can be used when a high VDC signal output is required.
M20
A+ A-
R1
R2
C
L1
L3
L2
S2S1
DIG
L1
L2
L3
CTMxxx
U
V
W
M
3
4
9
11
13
1
2
6
7
8
5
0VDC-
24VDC+
OUT

Related product manuals