EasyManua.ls Logo

Envicool EMW90HDNC1A - 安装指南

Default Icon
82 pages
Print Icon
To Next Page IconTo Next Page
To Next Page IconTo Next Page
To Previous Page IconTo Previous Page
To Previous Page IconTo Previous Page
Loading...
用户手册
3 安装指南
EMW90HDNC1A 风冷式冷水机组
53
3 安装指南
3.1 安装须知
为达到冷水机组的设计性能,和最大限度地延长其
使用寿命,请参考厂家提供的建议预留安装和维护
的空间,并严格安装设备图纸进行安装。
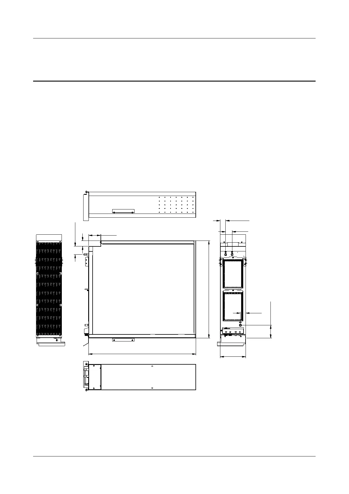
3.1.2 设备外形尺
EMW90HDNC1A 冷水机组的外形尺寸如图 3-1 所示,供安装过程中参考。
3-1 外形
1150
1040
275
70
58.5
87.5
59
130
138.5
59

Table of Contents

Related product manuals