EasyManua.ls Logo

Epson EPL-6200L - Operating Conditions (Including Consumables)

Epson EPL-6200L
204 pages
Print Icon
To Next Page IconTo Next Page
To Next Page IconTo Next Page
To Previous Page IconTo Previous Page
To Previous Page IconTo Previous Page
Loading...
EPSON EPL-6200/EPL-6200L Revision A
Product Description Basic Specifications 29
1.2.5 Operating Conditions (Including Consumables)
Ambient Temperature and Humidity Conditions
Barometric Pressure
76.0 to 101.0 kpa (Altitude: 0 ~ 2500 m)
Level
Differences between front and back, and left and right: within 1° of level
Lighting
3000 lx or less (do not expose to direct sunlight)
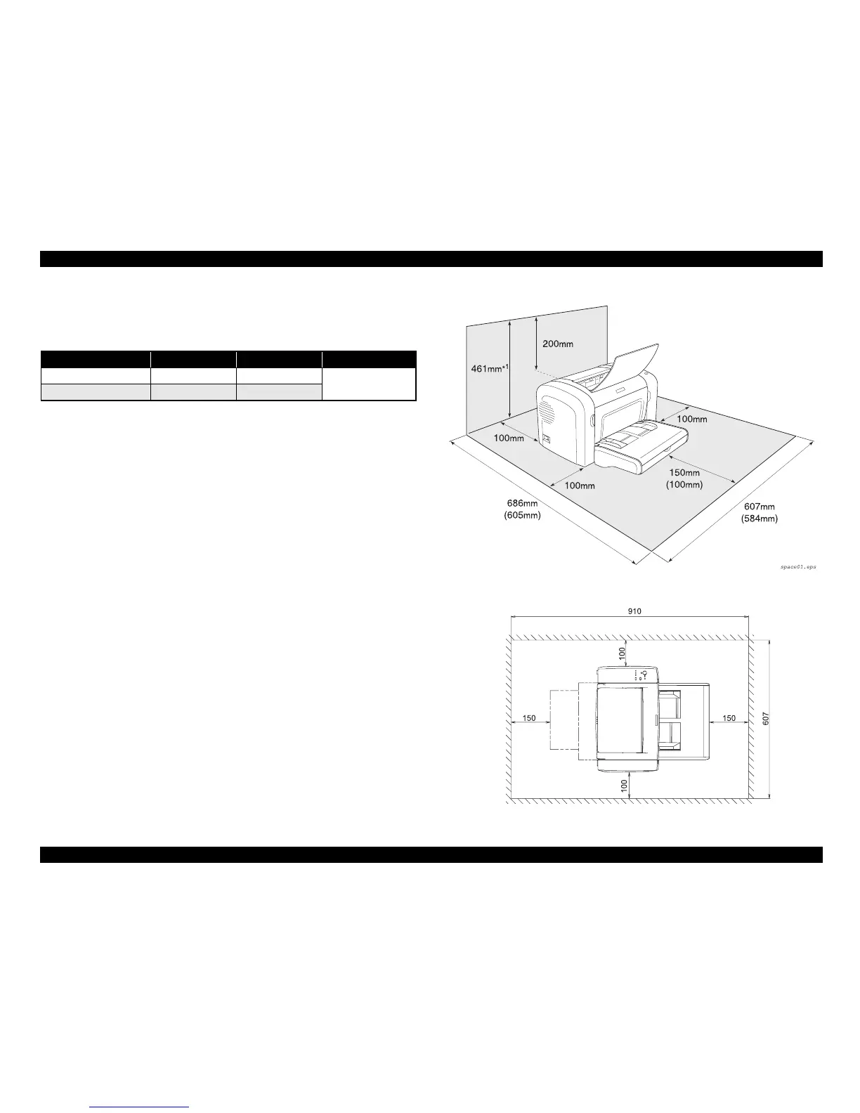
Space Requirements
In order to ensure that the printer operates properly, provide at least as much space
as shown in the figure below.
Figure 1-5. Required Surrounding Space
Table 1-29. Ambient Temperature and Humidity Conditions
Temperature (°C) Humidity (%RH) Others
Printer is under operation 10
35 15 85
No condensation
Printer is stopped 0 35 1085
Upper value: EPL-6200
(Lower value): EPL-6200L
*
1
: 661 mm when Lower Cassette
Unit has been installed
<Duplex Unit has been installed>

Table of Contents

Other manuals for Epson EPL-6200L

Related product manuals