EasyManua.ls Logo

Esco Ascent max - Ascent Max ADC-C Series Details

Esco Ascent max
71 pages
Print Icon
To Next Page IconTo Next Page
To Next Page IconTo Next Page
To Previous Page IconTo Previous Page
To Previous Page IconTo Previous Page
Loading...
44
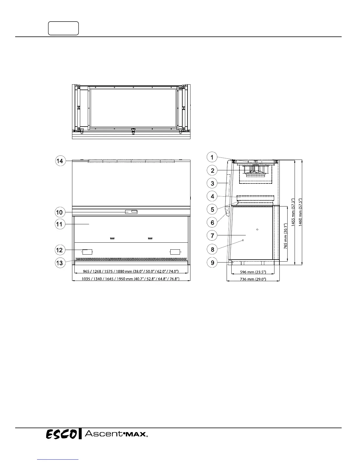
8.2AscentMaxADC_C_Series
8.2.1EngineeringDrawing
1. VOCsensor(optional)
2. Blower
3. Electrical/ElectronicPanel
4. CarbonFilter(s)
5. PreFilter
6. FluorescentLamp
7. TemperedGlassSides
8. PluggedServiceFixtureProvision(2oneachside)
9. StainlessSteelWorktop
10. EscoSentinelMicroprocessorControl
11. TemperedGlassSlidingSashWindow
12. ElectricalOutletKitProvision
13. AutoPurgeSlots
14. SecondaryBackupCarbonFilter

Table of Contents

Related product manuals