EasyManua.ls Logo

ETC OneTrack by ETC - OneTrack Backbone End Cap

ETC OneTrack by ETC
72 pages
Print Icon
To Next Page IconTo Next Page
To Next Page IconTo Next Page
To Previous Page IconTo Previous Page
To Previous Page IconTo Previous Page
Loading...
Parts and Accessories 55
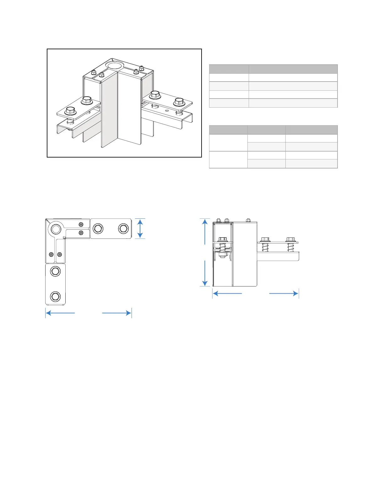
L-coupler Housing with Pull Box
Housing for L-coupler (see
L-coupler on page 35
)
Includes pull box, which facilitiates wiring and
allows space for a service loop
Color Model Number
Black OTB-LF-BLK
White OTB-LF-WHT
Silver OTB-LF-SLV
Custom OTB-LF-CST
OneTrack Backbone L-coupler Housing
withPull Box
Key Color Model Number
Inside
Black OT-LC-KI
White OT-LC-KI-1
Outside
Black OT-LC-KO
White OT-LC-KO-1
Related Accessories: OneTrack L-coupler
Dimensions
7.4 in
(188 mm)
1.7 in
(43 mm)
7.4 in
(188 mm)
5.8 in
(147 mm)

Table of Contents

Related product manuals