EasyManua.ls Logo

Fermator MOD MC PREMIUM PM - Page 71

Fermator MOD MC PREMIUM PM
120 pages
Print Icon
To Next Page IconTo Next Page
To Next Page IconTo Next Page
To Previous Page IconTo Previous Page
To Previous Page IconTo Previous Page
Loading...
71
MOD MC PREMIUM PM
90 10075
≥ 25
165
50
85
60
15
165
PL
PL
248
232 232
+ 61
- 19
HL + 220
≥ 25 ≥ 25 ≥ 25
± 22
HL + 262
± 126
HL + 411
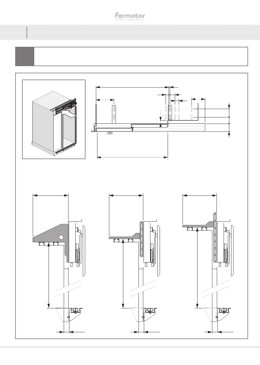
3.2.2.1.1
General fixing position overview. Preferably place the car fasteners as close as possible to the PL.
AIM
3.2 ASSEMBLY INSTRUCTIONS
3
3.2.2.1 OPERATOR ASSEMBLY
STATIC
EF BRACKET
ADJUSTABLE
ER BRACKET
ADJUSTABLE
EG BRACKET

Table of Contents