EasyManua.ls Logo

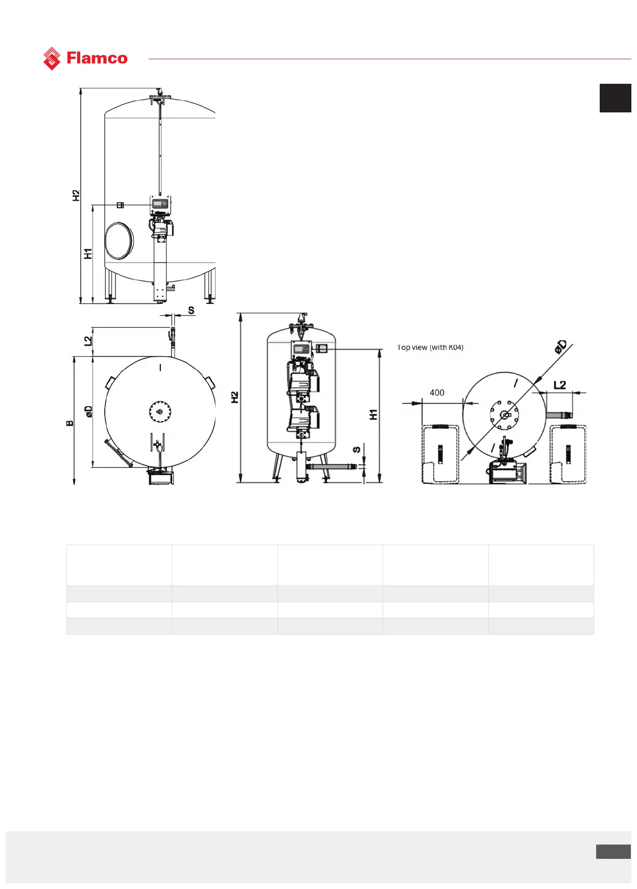
flamco Flamcomat MK-U G4 - Minimum Installation Distances

flamco Flamcomat MK-U G4
36 pages
Print Icon
To Next Page IconTo Next Page
To Next Page IconTo Next Page
To Previous Page IconTo Previous Page
To Previous Page IconTo Previous Page
Loading...
Manual Flamcomat MK-U G4
We reserve the right to change designs and technical specifications of our products.
34
ENG
Appendix 3. Technical data, information, electrical equipment
Compressor unit, nominal values
Type Nominal voltage (V) Nominal current (A) Nominal capacity (kW) Fuse
line protection
(on-site, recommended)
K11 230 V ~1 N PE 50 Hz 4.0 0.55 6 A (C)
K31 230 V ~1 N PE 50 Hz 7.5 1.1 10 A (C)
K40 230 V ~1 N PE 50 Hz 7.5 1.1 10 A (C)
* The rated current of the refill unit Flamcofill-P - 1.2A (0.3kW)

Table of Contents

Related product manuals