EasyManua.ls Logo

Freestyle 80 - FS-155 Model Dimensions and Connections

Freestyle 80
128 pages
Print Icon
To Next Page IconTo Next Page
To Next Page IconTo Next Page
To Previous Page IconTo Previous Page
To Previous Page IconTo Previous Page
Loading...
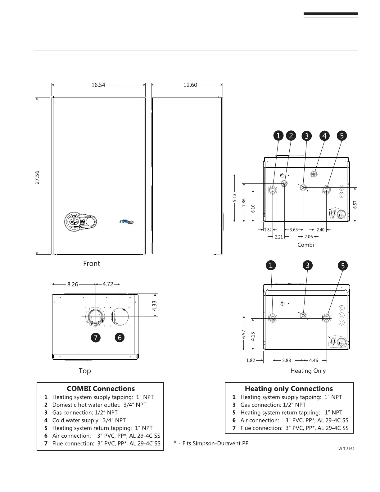
Figure 165 $IMENSIONSANDCONNECTIONSDATAFreeStyle
®
 ALLDIMENSIONSININCHES
Part number 550-142-850/0716
125
FreeStyle
®
WALL MOUNT GAS-FIRED WATER BOILERBoiler Manual
35 Dimensions and connections data

Table of Contents

Other manuals for Freestyle 80

Related product manuals