EasyManua.ls Logo

Freestyle 80 - Wiring Diagram - FS-155 Heating Only Ladder

Freestyle 80
128 pages
Print Icon
To Next Page IconTo Next Page
To Next Page IconTo Next Page
To Previous Page IconTo Previous Page
To Previous Page IconTo Previous Page
Loading...
Part number 550-142-850/0716
58
FreeStyle
®
WALL MOUNT GAS-FIRED WATER BOILERBoiler Manual
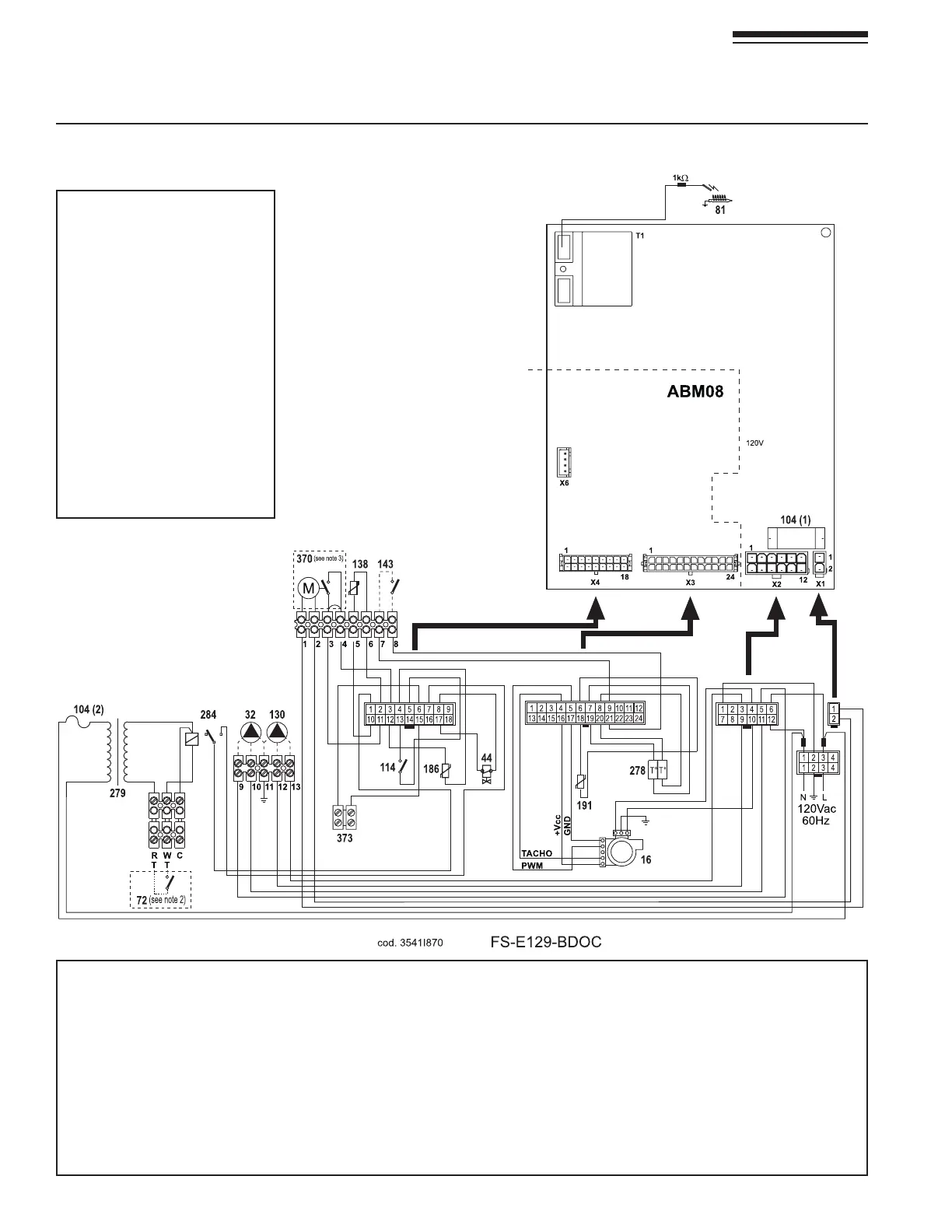
23 Wiring diagram — FS-155 Heating Only Ladder
&IGURE FreeStyle®,ADDER7IRING$IAGRAM
Legend
16 Fan
32 Central heating pump (not included)
44 Gas valve
72 Room thermostat (optional)
81 Ignition electrode
104(1) Fuse 3.15A
104(1) Fuse 630mA
114 Water pressure switch
130 DHW Pump (not included)
138 Outdoor sensor
143 DHW tank thermostat (optional)
186 Return temperature sensor
191 Exhaust temperature sensor
278 Double sensor (heating + safety)
279 Transformer 115-24 Vac
284 Relay SPST-Coil 24 Vac
370 LWCO (optional)
373 “OPENTHERM” communication
(Not used)
NOTES:
1. All wiring must be installed
in accordance with N.E.C.
and any other national state
or local requirements.
2. Room thermostat should
be a dry contact type and
should draw power from the
control board: should not
be greater than 24 Vac and
500 mA.
3. Max. voltage and electric
current for the LWCO +
CH PUMP + DHW PUMP
should not be greater than
120 Vac and 3 Amp.
4. In case of questions during
installation please contact
your local W-T distributor.

Table of Contents

Other manuals for Freestyle 80

Related product manuals