EasyManua.ls Logo

Freestyle 80 - Zone Valve Zoning - Primary;Secondary

Freestyle 80
128 pages
Print Icon
To Next Page IconTo Next Page
To Next Page IconTo Next Page
To Previous Page IconTo Previous Page
To Previous Page IconTo Previous Page
Loading...
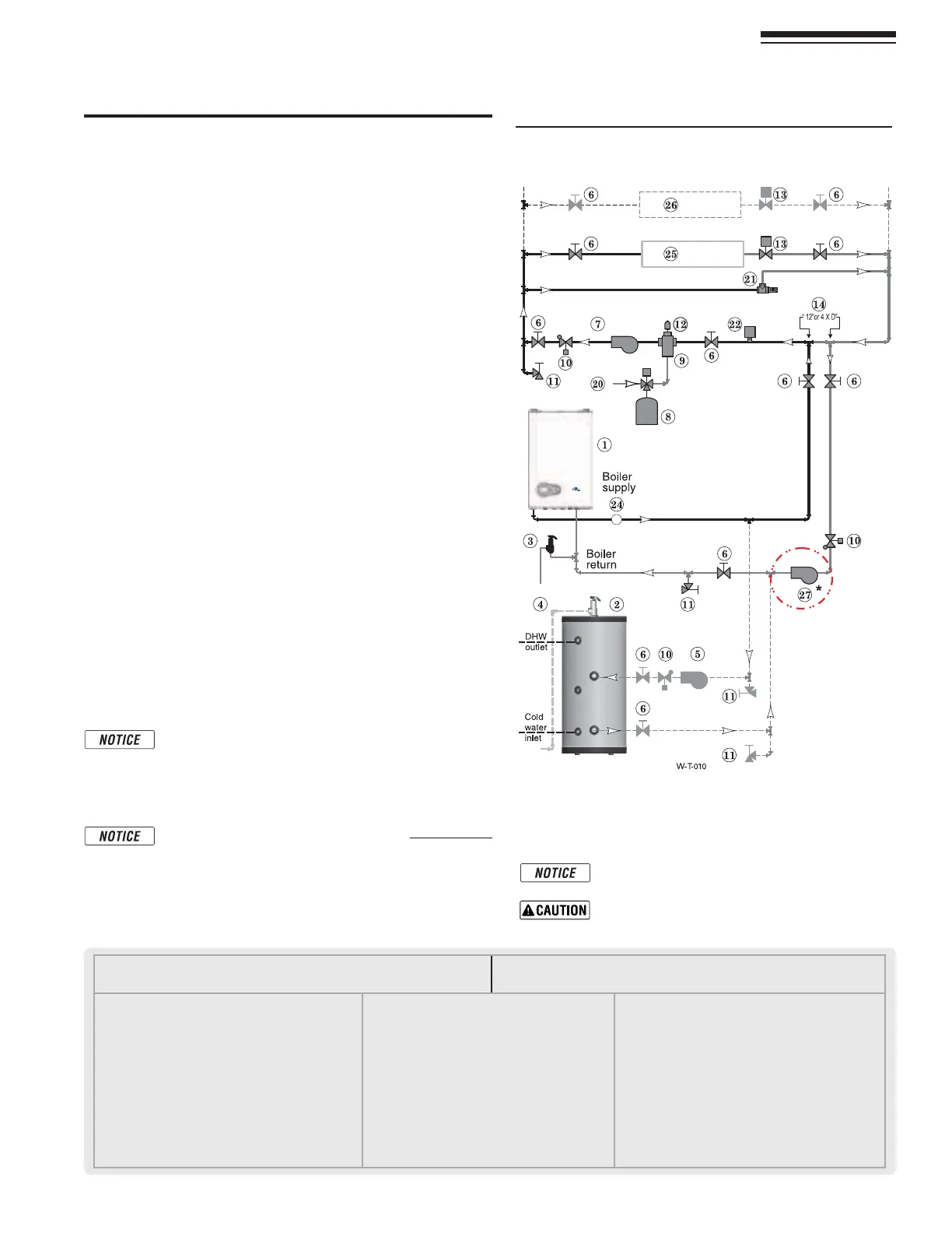
Figure 48:ONEVALVEZONINGPRIMARYSECONDARY
CONNECTIONASYSTEMCIRCULATORISREQUIRED
,%'%.$FORFigure 48.
.OTE4HISISACOMMONLEGENDFORALLPIPINGDIAGRAMS.OTALL
ITEMSLISTEDAPPEARINEVERYlGURE
1 FreeStyle® wall mount boiler
2 Indirect Water Heater, if used
3 Relief valve, supplied by Installer, field piped — MUST be
piped to boiler supply connection — see page 9 for infor-
mation
4 Relief valve piping to drain — see page 40
5 DHW circulator
6 Isolation valves
7 System circulator
8 Expansion tank, diaphragm type, if used
9 Air separator
10 Flow/check valves
11 Purge/drain valves
(Installer supplied)
12 Auto air vent
13 Zone valves
14 Primary/secondary connection (tees no more than
12 inches apart)
15 Expansion tank, closed type, if used (some chiller
systems may use a diaphragm-type expansion tank)
16 Water chiller
17 Check valve
18 Y-strainer
19 Balancing valve
20 Make-up water supply – Use applicable codes to deter-
mine if backflow preventers, pressure reducing valves,
and fill valves may be required
21 By-pass pressure regulator, REQUIRED for zone valve
systems unless other provision is made
22 High limit temperature control
23 Zone circulator
24 Pressure/temperature gauge, supplied with boiler, field piped
25 Heating circuits
26 Additional heating circuits, if any
27 Boiler circulator,
*
(For Heating Only boilers, In the
Combi boiler the circulator is already inside the boiler
jacket).
28 Mixing valve, if any
Part number 550-142-850/0716
41
FreeStyle
®
WALL MOUNT GAS-FIRED WATER BOILERBoiler Manual
17 Primary/Secondary System Piping (continued)
Zone Valve zoning – primary/secondary
(Shown with optional DHW piping)
See Figure 48.
 4HISCONlGURATIONIS FOR ZONEVALVESYSTEMSUSING A BOILER
LOOPCONNECTEDASASECONDARYCIRCUITOFFOFAPRIMARYSYSTEM
loop. Systems whose flow characteristics do not comply with
those listed in Figure 45, page 38 must pipe the boiler loop as a
secondary circuit as show.
 3YSTEMSZONEDWITHZONEVALVES-534USEABYPASSPRESSURE
regulator.
 )NSTALL ASYSTEMCIRCULATORSUPPLIED BY INSTALLER CAPABLE OF
delivering the proper flow and head as shown.
Expansion Tank required
 0ROVIDEASYSTEMEXPANSIONTANKFOLLOWINGTHEGUIDELINESON
pages 37 or 39.
2. DO NOTUSEACLOSEDTYPETANKIFCONNECTINGTOABOILERTHAT
is equipped with an automatic vent.
Domestic Hot Water (DHW) tank, if used
1. $(7DIRECTCONNECTION0IPEFROMTHENEARBOILERPIPINGTO
THE$(7TANKSBOILERCONNECTIONSASSHOWN
2. $(7ASZONE!$(7TANKCANBECONNECTEDASAZONEIFA
DHW tank is NOT already connected to the boiler. To provide
DHW priority operation, use a zone controller. See notices
on page 51TOENSURECOMPLIANCEWITHTHE%NERGY!CT
3. DHW Priority operation—The FreeStyle® CONTROLTURNS OFF
SPACEHEATINGTOTHE(%!4ZONESDURINGDOMESTICWATERHEAT-
INGCALLSONTHE$(7INPUT4HE-!8/.4)-%SETTINGCAN
BEADJUSTEDTOLIMITHOWLONGTHISOCCURS3ETTHE-!8/.
4)-%TOhvTODISABLEDOMESTICPRIORITY3EE page 65FORSET-
ting instructions.
4. )FNOT connecting an indirect water heater, do not use the DHW
input or DHW Circulator output on the FreeStyle® control.
/VERRIDINGTHE/UTDOOR2ESETFUNCTIONBYCONNECTING
space heating zones to inputs and outputs intended
FOR$(7 APPLICATIONS MAYVIOLATESection 303 of
the 2007 Energy Act. See page 127FORCOMPLIANCE
INFORMATIONANDEXEMPTIONS
Wiring the Indirect tank aquastat to the Heating Only
"OILERREFERTO3ECTION&IELD7IRING
Controlling the Zones
1. The FreeStyle® control can be used to control space heating
only, domestic WATERHEATINGONLYORBOTH2EFERTOlELDWIRING
beginning on page 51FORINSTRUCTIONSONWIRINGTOZONEVALVES
2. The boiler and zone valves can also be operated by a
zone controller.
#ONNECTZONEVALVEENDSWITCHESTO(%!4INPUT
#ONNECTSYSTEMCIRCULATORTO(%!4#IRCOUTPUT
5SE ISOLATION RELAYSIF CONNECTINGWIREZONE
VALVEENDSWITCHESTOTHE(%!4INPUT
(See Note,
page 39)

Table of Contents

Other manuals for Freestyle 80

Related product manuals