EasyManua.ls Logo

Freestyle 80 - Circulator Zoning - Primary;Secondary

Freestyle 80
128 pages
Print Icon
To Next Page IconTo Next Page
To Next Page IconTo Next Page
To Previous Page IconTo Previous Page
To Previous Page IconTo Previous Page
Loading...
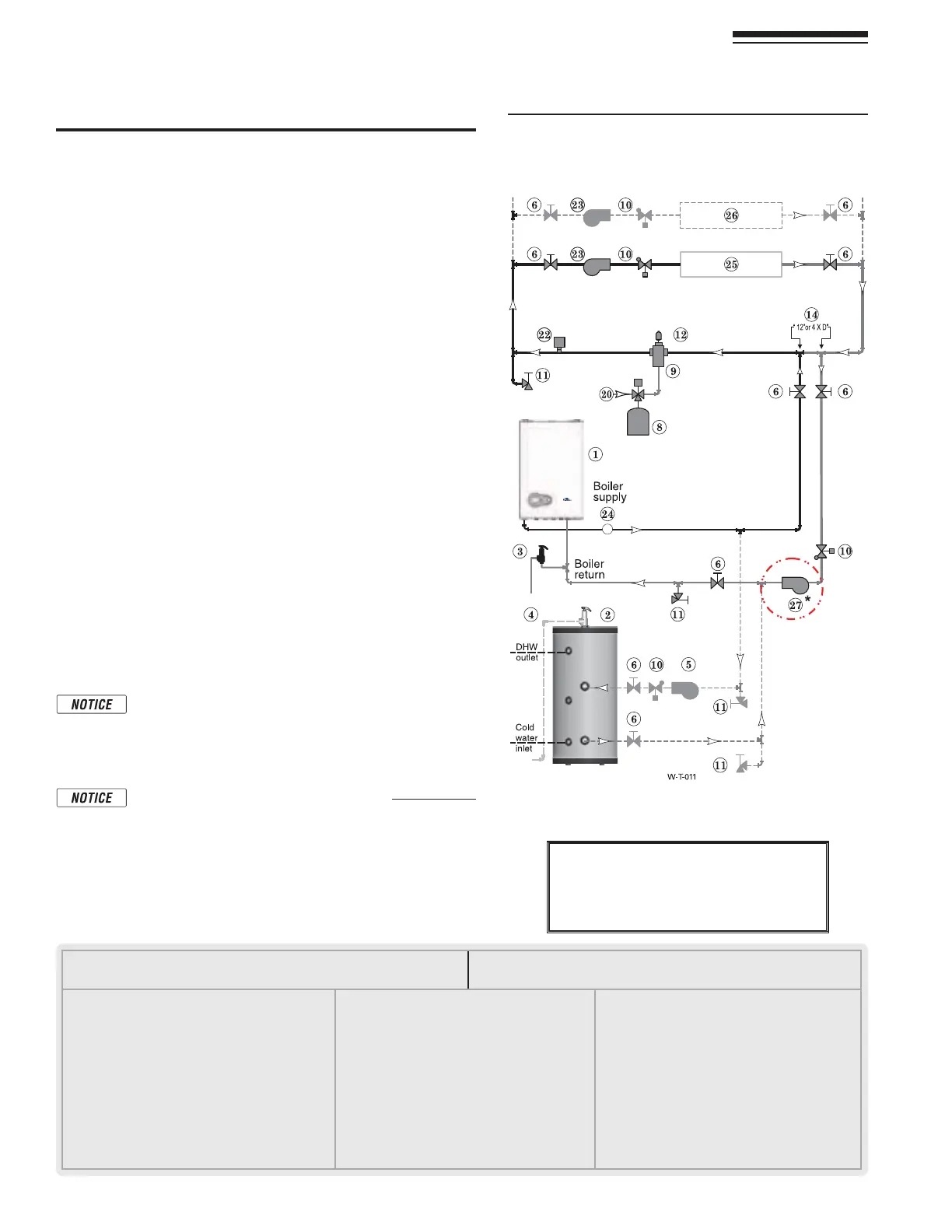
Figure 49 #IRCULATORZONINGPLUSOPTIONAL$(7
PIPING
(See Note,
below)
./4%(Applies to Figures 48, 49 & 50)
Add boiler and tank head loss for pump
sizing.
Part number 550-142-850/0716
42
FreeStyle
®
WALL MOUNT GAS-FIRED WATER BOILERBoiler Manual
17 Primary/Secondary System Piping (continued)
Circulator zoning – primary/secondary
(Shown with optional DHW piping)
See Figure 49.
1. 4HISCONlGURATIONISFORCIRCULATORZONEDSYSTEMSUSINGABOILER
LOOPCONNECTEDASASECONDARYCIRCUITOFFOFAPRIMARY SYSTEM
loop. Systems zoned with circulators must pipe the boiler loop
as a secondary circuit as show.
 )NSTALLASEPARATECIRCULATORSUPPLIEDBYINSTALLERFOREACHZONE
CAPABLEOFDELIVERINGTHEPROPERmOWANDHEADASSHOWN
Expansion Tank required
 0ROVIDEASYSTEMEXPANSIONTANKFOLLOWINGTHEGUIDELINESONpages
37 or 39.
2. DO NOTUSEACLOSEDTYPETANKIFCONNECTINGTOABOILERTHATIS
equipped with an automatic vent.
Domestic Hot Water (DHW) tank, if used
1. $(7DIRECTCONNECTION0IPEFROMTHENEARBOILERPIPINGTO
THE$(7TANKSBOILERCONNECTIONSASSHOWN
2. $(7ASZONE!$(7TANKCANBECONNECTEDASAZONEIFA$(7
tank is NOT already connected to the boiler. To provide DHW
priority operation, use a zone controller. See notices on page 51
TOENSURECOMPLIANCEWITHTHE%NERGY!CT
3. DHW Priority operation—The
FreeStyle®CONTROLTURNSOFFSPACE
HEATINGTOTHE(%!4ZONESDURINGDOMESTICWATERHEATINGCALLS
ONTHE$(7INPUT4HE-!8/.4)-%SETTINGCANBEADJUSTED
TOLIMITHOWLONGTHISOCCURS3ETTHE-!8/.4)-%TOhvTO
disable domestic priority. See page 65FORSETTINGINSTRUCTIONS
4. ) F NOT connecting an indirect water heater, do not use the DHW
input or DHW Circulator output on the
FreeStyle® control.
/VERRIDINGTHE/UTDOOR2ESETFUNCTIONBYCONNECTING
SPACEHEATINGZONESTOINPUTSANDOUTPUTSINTENDEDFOR
DHW applications may violate Section 303 of the 2007
Energy Act. See page 127FORCOMPLIANCEINFORMATION
and exemptions.
Wiring the Indirect tank aquastat to the Heating Only
"OILERREFERTO3ECTION&IELD7IRING
Controlling the Zones
1. The FreeStyle® control can be used to control space heating only,
DOMESTICWATERHEATINGONLYORBOTH2EFERTOlELDWIRINGBEGIN-
ning on page 51FORINSTRUCTIONSONWIRINGTOCIRCULATORS
2. The boiler and circulators can also be operated by a zone
controller.
,%'%.$FORFigure 49 and Figure 50
.OTE4HISISACOMMONLEGENDFORALLPIPINGDIAGRAMSNOT
ALLITEMSLISTEDAPPEARINEVERYlGURE
1 FreeStyle® wall mount boiler
2 Indirect Water Heater, if used
3 Relief valve,
supplied by Installer, field piped — MUST
be piped to boiler supply connection — see page 9 for
information
4 Relief valve piping to drain — see page 40
5 DHW circulator
6 Isolation valves
7 System circulator
8 Expansion tank, diaphragm type, if used
9 Air separator
10 Flow/check valves
11 Purge/drain valves
(Installer supplied)
12 Auto air vent
13 Zone valves
14 Primary/secondary connection (tees no more than
12 inches apart)
15 Expansion tank, closed type, if used (some chiller
systems may use a diaphragm-type expansion tank)
16 Water chiller
17 Check valve
18 Y-strainer
19 Balancing valve
20 Make-up water supply – Use applicable codes to deter-
mine if backflow preventers, pressure reducing valves,
and fill valves may be required
21 By-pass pressure regulator, REQUIRED for zone valve
systems unless other provision is made
22 High limit temperature control
23 Zone circulator
24 Pressure/temperature gauge, supplied with boiler, field
piped
25 Heating circuits
26 Additional heating circuits, if any
27 Boiler circulator,
*
(For Heating Only boilers, In the
Combi boiler the circulator is already inside the
boiler jacket).
28 Mixing valve, if any

Table of Contents

Other manuals for Freestyle 80

Related product manuals