EasyManua.ls Logo

Frick QUANTUM Series - Quantum 4 Communications Jumpers; COMMUNICATIONS WIRING

Frick QUANTUM Series
84 pages
Print Icon
To Next Page IconTo Next Page
To Next Page IconTo Next Page
To Previous Page IconTo Previous Page
To Previous Page IconTo Previous Page
Loading...
S90-010 CS (APR 08) FRICK
®
QUANTUM™ COMPRESSOR CONTROL PANEL
Page 76 COMMUNICATIONS SETUP
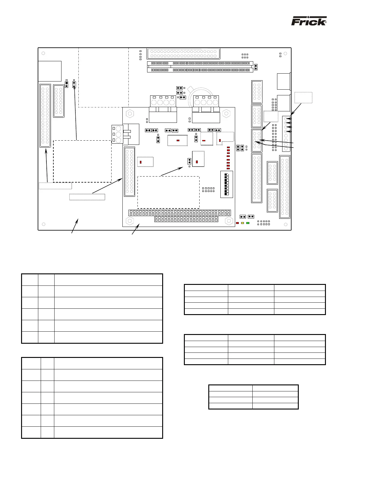
Quantum™ 4 Communications Jumpers
COMMUNICATIONS BOARD JUMPERS
Com-1 (TB1)
LK2
in
out*
Terminate COM1
No termination
RS-422/485
LK7
in
out*
Pull down COM1
No pull down
RS-422/485 (Rx-/Tx-)
LK8
in
out*
Pull up COM1
No pull up
RS-422/485 (Rx+/Tx+)
LK9
in
out*
Pull down COM1
No pull down
RS-422 (Tx-)
LK10
in
out*
Pull up COM1
No pull up
RS-422 (Tx+)
LK16
A
B*
COM1 RS-422 (TB1)
COM1 RS-485 (TB1)
* Standard Setting
Com-2 (TB2 - TB3)
LK 1
in
out*
Terminate COM2
No termination
RS-422/485
LK 3
in
out*
Pull down COM2
No pull down
RS-422/485 (Rx-/Tx-)
LK 4
in
out*
Pull up COM2
No pull up
RS-422/485 (Rx+/Tx+)
LK 5
in
out*
Pull down COM2
No pull down
RS-422 (Tx-)
LK 6
in
out*
Pull up COM2
No pull up
RS-422 (Tx+)
LK 11
A
B*
Select RS-232 for COM2 (TB3)
Select RS-422/RS-485 for COM2 (TB2)
LK 17
A
B*
COM2 RS-422 (TB2)
COM2 RS-485 (TB2)
* Standard Setting
COMMUNICATIONS WIRING
TB1 - COM1 RS-485/422 (Used for Sequencing):
4-way screw terminal
Pin Signal (RS-422) Signal (RS-485)
4 COM1 TX+ -
3 COM1 TX- -
2 COM1 RX+ COM1 TX+ / RX+
1 COM1 RX- COM1 TX- / RX-
TB2 - COM2 RS-485/422 (Standard Communications):
4-way screw terminal
Pin Signal (RS-422) Signal (RS-485)
4 COM2 TX+ -
3 COM2 TX- -
2 COM2 RX+ COM2 TX+ / RX+
1 COM2 RX- COM2 TX- / RX-
TB3- COM2 RS-232 (Standard Communications):
3-way screw terminal
Pin Signal (RS-232)
3 Ground
2 RX
1 TX
PWR
SUSP
FLASH
LK11
LK12
PL24
PL3
PL
LK9
LK8
LK10
PL16
LK1
PL7
PL9
LK2
PL17
PL12
PL19
PL18
PL14
PL10
PL6
PL2
PL4
PL1
Flash Card
Socket
(Located
under
board)
PL3
PL
5
PL11
LK3
A
B
LK4
PL15
+5VDC
+12VDC
RET / GND
RET / GND
+RX/+TX
-RX/-TX
Power
Cable
PL8
I/O
Cable
TB1
TB2
LK2
COM-2
TB
3
RS-232
3
2
1
PL13
This assembly is
shipped with LK4 set to
B position for an LG
Philips display.
If using a Samsung, NEC
or Sharp Display, set
LK4 to position
A
.
Keyboard Cable
Display Cable
LK6
B
A
LK5
LK7
COM-2
COM-1
1
2
3
4
1
2
3
4
LK8
LK7
LK10LK9
D3
LK16
A
B
A
B
PL2
3
4
5 6 7
0
1
2
D8
D10
D11
D12
PORT 80H
D4
D5
D7
D13
SW1
ON
1
2
3
4
5
6
7
8
D6
D2
LK11
B
A
LK1
LK4LK3
LK6LK5
D1
D8
LK17
To set Comm-2 for RS-232
operation, set LK11 to the A
position.
To set Comm-2 for RS-422/485
operation, set LK11 to the B
position.
RS-422
RS-485
RS-422
RS-485
PL1
Processor Board (large
bottom board
)
Communications Board
(
small to
p
board
)
COM2
(
TX
)
COM1
(
RX
)
COM1
(
TX
)
KB
COM2
(
RX
)

Table of Contents

Related product manuals