EasyManua.ls Logo

Frymaster FPRE117 - Contactor Boxes

Frymaster FPRE117
82 pages
Print Icon
To Next Page IconTo Next Page
To Next Page IconTo Next Page
To Previous Page IconTo Previous Page
To Previous Page IconTo Previous Page
Loading...
8-12
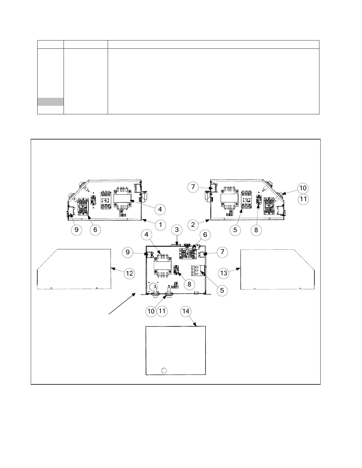
8.4.1 Component Boxes cont.
ITEM PART# COMPONENT
20 807-3868 Strain Relief
21 807-0121 Bushing, Heyco SB-625-500
22 816-0217 Paper, Insulating Terminal Block CE
23 106-5750 Harness, Full Vat Assembly
24 220-0083 Plate, Strain Relief
25 807-4036 Switch
807-3575 Plug, Carling Switch Hole (used in place of a switch on some models)
26 230-0834 Guard, RE Box Switch
8.4.2 Contactor Boxes
NOTE 1: Left and right contactor box assemblies are mirror images of one another. With the
exception of the box itself, all components of a left-hand assembly, are the same as those in the
corresponding right-hand assembly and vice versa.
NOTE 2: See Page 8-17 for Contactor Box Wiring Assembly
continued on the following page…
Left Assembly
106-8789
Right Assembly
106-8790
Single Assembly
106-8982

Table of Contents

Other manuals for Frymaster FPRE117

Related product manuals